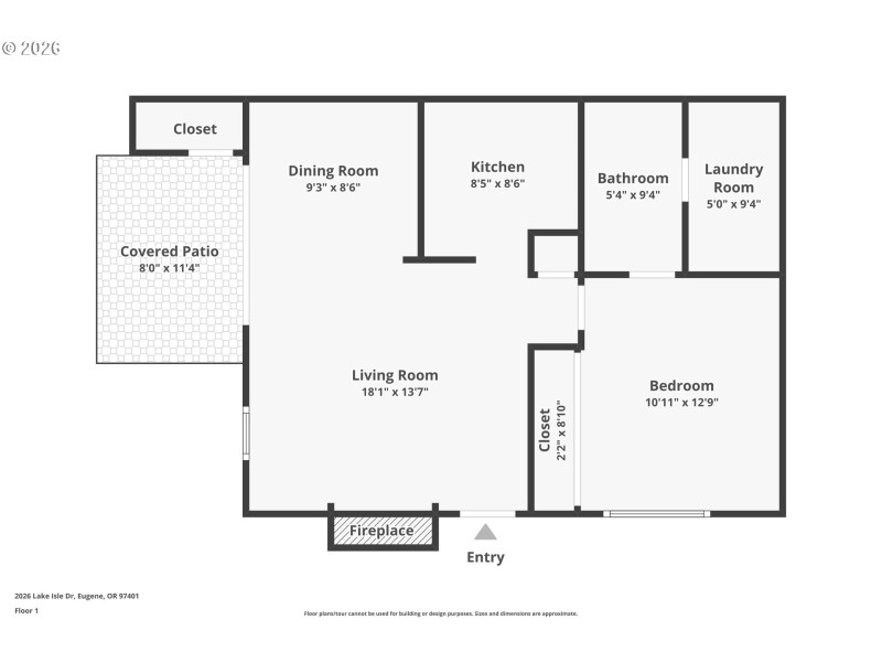
Charming ground level one-bedroom, one-bath condominium in the desirable Island Lakes community. The inviting, light & bright living room features a cozy wood-burning fireplace and a ductless heating and air conditioning unit for year-round comfort, flowing seamlessly into the dining area with a sliding glass door to a covered patio overlooking a tranquil pond which is perfect for relaxing or entertaining. The patio has five mature clematis vines, a fragrant Grand Dame rose bush, a passion flower vine, a hummingbird attracting Salvia, a purple native geranium, a blue campanula, several purple and white Batik Iris, and a storage closet. Luxury vinyl plank flooring runs throughout the home, adding style and durability. The kitchen offers tile flooring, an eat-bar, and all appliances included for move-in convenience. An interior laundry room with tile flooring, washer/dryer, and built-in shelving provides added functionality. Offering low-maintenance living in a peaceful setting the community amenities include basic Xfinity TV and internet, water, sewer, garbage, clubhouse, pool, car wash station, secure mail, landscaping, and exterior maintenance. Minutes from the Ruth Bascom river path trail.
Goodpasture Rd., Rt. James Rd., Left Lake Isle Dr., take 2nd right, Building 9
Dwelling Type: Residential
Subdivision: 9
Year Built: 1982, County: US
Goodpasture Rd., Rt. James Rd., Left Lake Isle Dr., take 2nd right, Building 9
Listing is courtesy of Berkshire Hathaway HomeServices Real Estate Professionals
Sign in to your account to continue