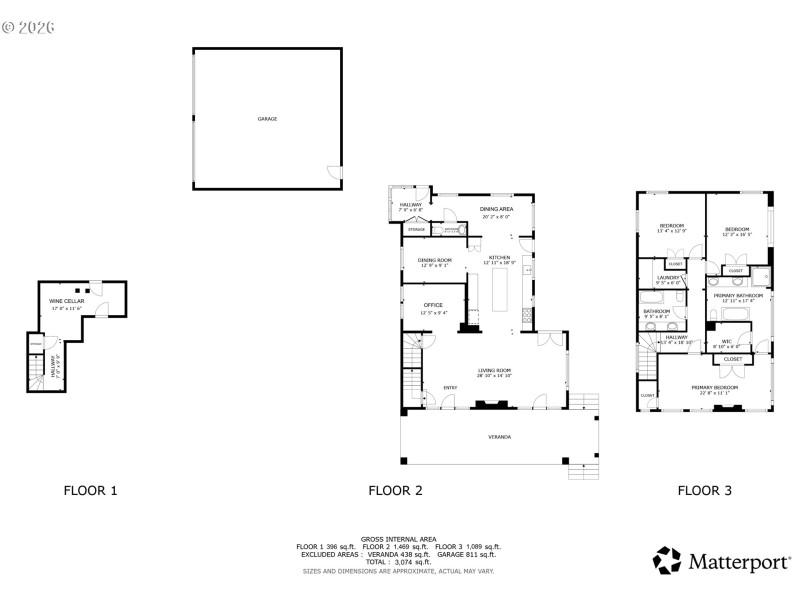
A masterful restoration by McCulloch Construction, known for having an obsession with excellence. A studs out restoration with all new systems in 2020. Newly remodeled master suite in 2026! The Emma Austin House is poetic architecture triumphantly restored by Portland’s remodel experts, McCulloch Design Build, (with about 2,000 skillful projects to their credit). Gracious open floor plan ideal for entertaining on the main floor, with expansive windows that frame stunning views of the 1+ acre property showcasing mature rose gardens, a fairy-tale gazebo, artistic fountain, charming waterfall and majestic redwood. The home is awash with charm. Inside, light pours through thoughtfully placed windows and restored fixtures, illuminating elegant hardwood floors and a series of spaces designed to feel both refined and welcoming. A private office with custom built-ins offers a quiet retreat, while the living room is anchored by a dramatic stone-and-brick fireplace that grounds the home with warmth and presence. The chef’s kitchen, blends timeless materials with modern functionality, highlighting marble countertops, a generous island, and premium appliances, seamlessly integrated for everyday ease and elevated entertaining, opening gracefully to a formal dining room perfectly suited for memorable gatherings. Upstairs, the primary suite unfolds as a serene sanctuary, complete with its own fireplace and a spa-inspired bath featuring heated floors, marble finishes, a glass-enclosed shower, a walk-in closet, and a soaking tub positioned to invite relaxation while overlooking the peaceful, garden-like setting. While the lower level reveals a private wine cellar with custom built-ins, an intimate space designed for both collection and conversation. Ideally located within walking distance to downtown Lake Oswego and the trails of Tryon Creek.
HWY 43 to Briarwood Rd
Dwelling Type: Residential
Subdivision: N/A
Year Built: 1910, County: US
HWY 43 to Briarwood Rd
Listing is courtesy of Premiere Property Group, LLC
Sign in to your account to continue