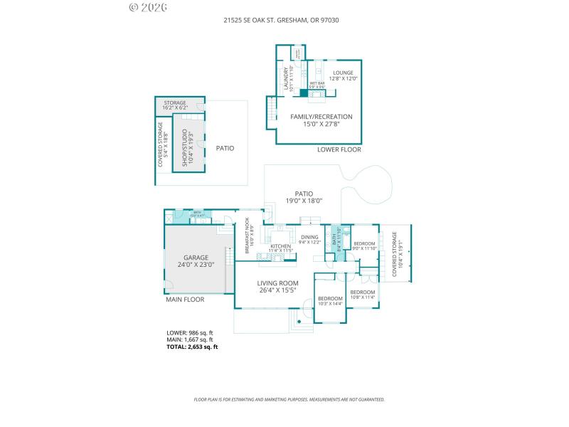
This retro ranch set back off the street on a serene lot is ready to shine again! Fabulous 1960s character throughout including a statement brick fireplace and bank of floor-to-ceiling windows in the living room. Updated kitchen has cool period-perfect layout with sleek updated counters, cabinets, backsplash, and modern appliances. Rich hardwoods on the main level, including in all three bedrooms. Two time capsule bathrooms with colorful original tile. The rat pack would’ve appreciated the lower level with its lounge and built-in bar, another brick fireplace in the family room, and large laundry room with sink! With a little love this home can be a real showpiece. Attached garage, plus long driveway so you’ll never worry about parking.
Stark St, North on 214th, East on Oak St
Dwelling Type: Residential
Subdivision: NEWELL PARK
Year Built: 1962, County: US
Stark St, North on 214th, East on Oak St
Listing is courtesy of Real Broker
Sign in to your account to continue