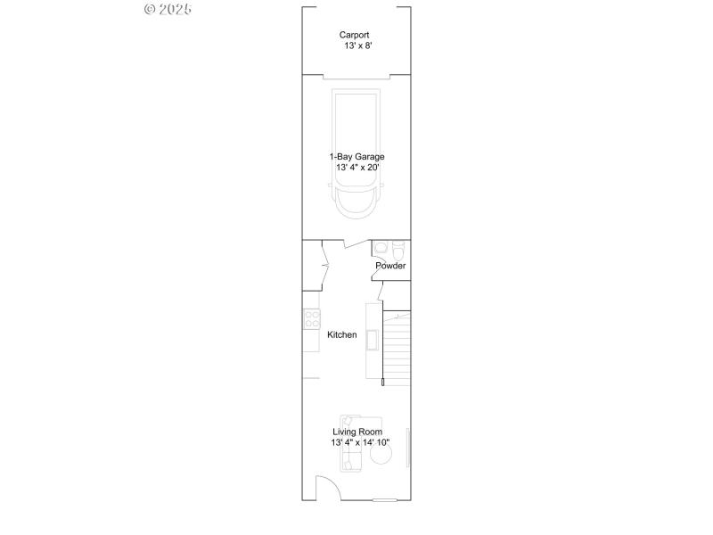
This new construction home by Lennar is located in Reed's Crossing, a vibrant community minutes from major employers with more than 36 acres of open spaces connected by paths, a Town Center featuring shopping and dining, and access to highly rated schools. The 2 bedroom, 2.5 bath Delany plan offers a functional two-story layout with an open-concept first floor that combines the kitchen, living room and dining area. Upstairs you'll find two primary suites each featuring a private bath with a double vanity and walk-in closet, connected by a versatile loft space. Interior highlights include quartz countertops, Shaker-style cabinets, LVP flooring in the kitchen and entry, LVT in the baths, and two-tone interior paint. This home also includes central air conditioning, a refrigerator, washer and dryer, and blinds—all at no extra cost! Rendering is artist conception only. Photos are of a similar home, features and finishes will vary. Estimated completion - March 2026. Homesite 1627.
Blanton to right on 83rd to left on Quincy. Model home on the left
Dwelling Type: Residential
Subdivision: N/A
Year Built: 2026, County: US
Blanton to right on 83rd to left on Quincy. Model home on the left
Listing is courtesy of Lennar Sales Corp
Sign in to your account to continue