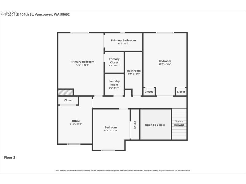
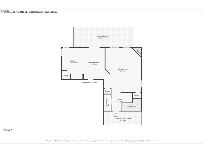
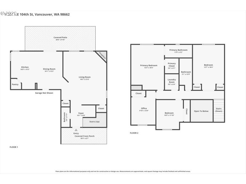
Updated home with NO HOA. Corner lot with open floor plan and modern improvements throughout. Vaulted entry brings in natural light and leads to a spacious main level with LPV flooring and chair rail accents in the living and dining areas. Kitchen refreshed with updates and features a pantry with custom built shelving for added storage and organization.Upstairs offers newer carpet and a large primary suite with a recently remodeled bathroom.Enjoy outdoor living on the covered back deck overlooking a fenced backyard with a sturdy 12x10 detached shed.Recent updates include A/C, roof and exterior trim/eave paint (2024), cedar fence (2025) Garage includes workbench for projects or hobbies.Convenient location with easy access to I-205 and Hwy 500 and everyday amenities including grocery, dining, and coffee nearby.
SR500 N, L on 99th St., R on 115th, to L on 104th
Dwelling Type: Residential
Subdivision: N/A
Year Built: 2000, County: US
SR500 N, L on 99th St., R on 115th, to L on 104th
Listing is courtesy of Berkshire Hathaway HomeServices NW Real Estate
Sign in to your account to continue