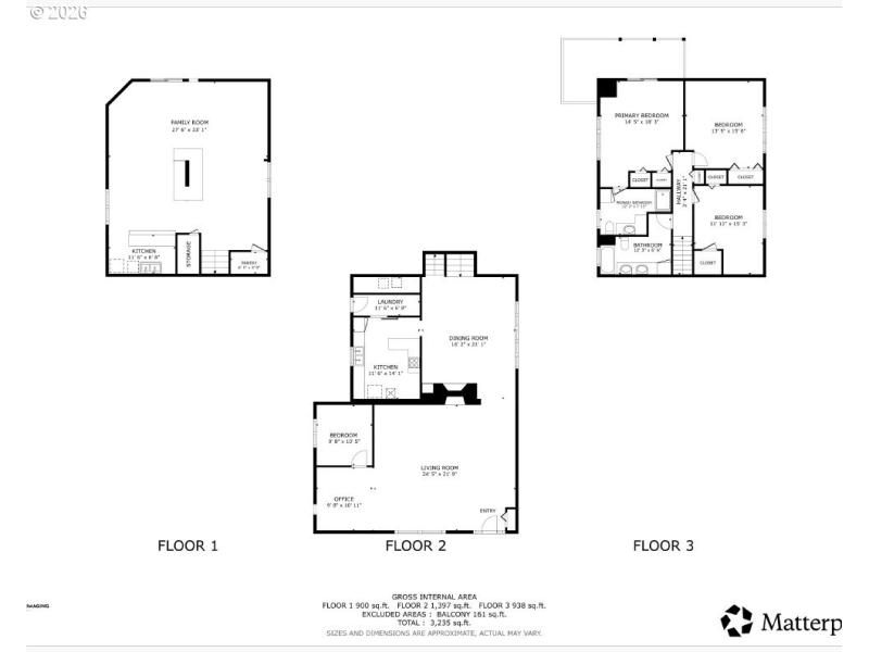
Looking for a private, unique, nature-rich setting, surrounded by rolling hills and vineyards, in the very heart of wine country? Inhale the scent of stately trees while strolling this sylvan, park-like estate. Offering a rare chance to acquire a coveted address, this property is located in the famous Dundee Hills AVA, south of Dundee, minutes to McMinnville, Carlton & Newberg. Enjoy quick access to Hwy99w & Hwy18, easily connecting to Portland, Salem & the Oregon Coast. >>Lots of infrastructure is already here: well & newer pressure tank, newer septic, six out-buildings (including an oversized, high-door 2-bay shop, a 5-bay machine shed with office and half bath, a critter barn & a chicken coop), fenced-in equipment yard, double power meter drops, plentiful paved parking & winding driveways, and a 3,100+ sf 'blank slate' residence, ready for your custom touches. Recent repairs include a 2020 Heat Pump/Air Handler, 2006 Electrical & mechanical repair, and 2011 Septic System major repair. >>This mid-century modern floorplan could really pop with a bold remodel. The solid structure might also make an exotic tasting room or bed & breakfast*, with large gathering spaces, two kitchens, two decks and an 'infinity view' patio area overlooking south facing valley & vineyard views. Alternative, private building sites are also available on this sprawling wooded acreage. *Please don't enter the property without an appointment. *Buyer to do all due diligence to support the intended use. Ask your broker to send you the details including maps, floorplan & developer's packet available with this listing. >>Finally, take a drive along Breyman Orchards Road and soak in the rolling countryside, passing along the way world-renown destinations including Remy Wines, Durant Vineyards & Olive Mill, White Rose Estate, De Ponte Cellars, Resonance Dundee Hills, Domain Drouhin & Domaine Serene. What a magical, wonderful location!
Hwy 99w to NE McDougall Rd. then N on Breyman Orchards Rd. to site
Dwelling Type: Residential
Subdivision: Dundee Hills AVA
Year Built: 1977, County: US
Hwy 99w to NE McDougall Rd. then N on Breyman Orchards Rd. to site
Listing is courtesy of Good Land Company
Sign in to your account to continue