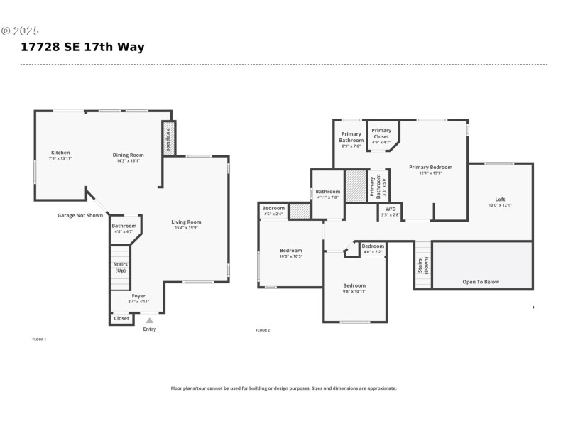
Stunning Updated Home in Fishers Landing! This beautifully updated home sits on a spacious corner lot in the sought-after Summer’s Walk neighborhood. Fresh exterior and interior paint and new flooring throughout give the home a clean, modern feel. Greeted by the large covered porch, you enter into the bright main living room. The dining room flows effortlessly into the remodeled kitchen, boasting painted cabinets, upgraded hardware and fixtures, stylish lighting, and quartz countertops. Upstairs, a versatile loft area provides the perfect space for an office, playroom or potential 4th bedroom. The primary suite includes a walk-in closet and an en-suite bathroom with a double vanity. Two additional spare bedrooms, a full bathroom, and a laundry closet complete the upper level. The private backyard backs to HOA-maintained greenspace and is fully fenced. Enjoy the newly poured stamped concrete patio, garden beds, and hot tub, making it an ideal retreat for relaxation or entertaining. Located in a highly rated school district and a well-maintained neighborhood, this home offers easy access to shopping and restaurants. See our virtual tour links for more information!
SE 180th Ave to SE 17th Way
Dwelling Type: Residential
Subdivision: N/A
Year Built: 1999, County: US
SE 180th Ave to SE 17th Way
Listing is courtesy of eXp Realty LLC
Sign in to your account to continue