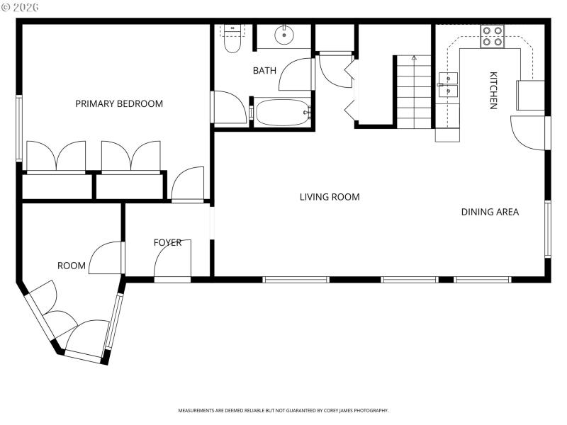
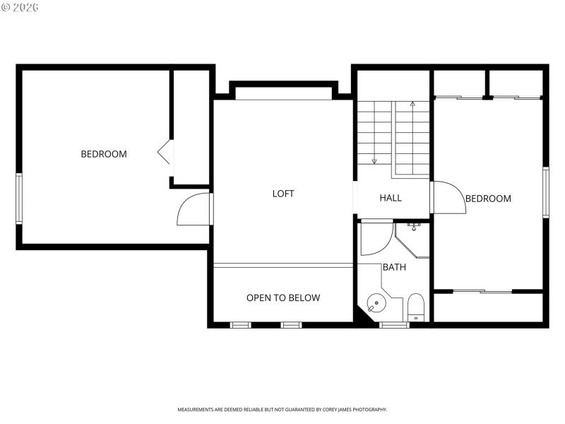
Located in the beautiful Columbia Heights area and just minutes from everyday conveniences, this two-story home blends comfort with practical living. The main floor is set up for daily life and includes a small office or flex space for work or hobbies. Upstairs offers two bedrooms, a 3/4 bath, and a loft-style living area that creates added separation and versatility.The kitchen features stainless steel appliances, and a mini-split system provides year-round comfort. Outdoors, enjoy the surrounding evergreens, patio space, and room for activities. An attached two-car garage adds convenience, while the setting offers a sense of privacy within a great neighborhood.
GPS is accurate, use from your location for best directions.
Dwelling Type: Residential
Subdivision: N/A
Year Built: 1984, County: US
GPS is accurate, use from your location for best directions.
Listing is courtesy of Realty ONE Group Pacifica
Sign in to your account to continue