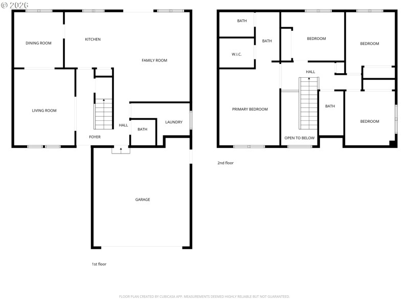
Located in the highly sought after Union High School district, this like new home is tucked away on a private cul-de-sac, offering both tranquility and convenience. Completely remodeled in 2023 with no detail spared, this home feels brand new from top to bottom. Step inside to find beautiful quartz countertops throughout, new trim, updated light fixtures, and newer carpet, all thoughtfully selected to create a clean, modern feel. The kitchen features an induction range, pantry, and flows seamlessly into the main living spaces—perfect for everyday living and entertaining. A slider off the family room opens to a covered back porch and a huge fully fenced yard, creating effortless indoor/outdoor living. A gas line is already plumbed in the family room, offering the option to easily add a fireplace or stove. Enjoy both a covered front porch and a covered back porch, offering inviting spaces to relax and take in the peaceful surroundings. The laundry room is already plumbed for a sink, adding functionality and flexibility. Major systems have been updated, including a newer roof, furnace, A/C, and new siding, giving you peace of mind for years to come. Outside, enjoy front and back sprinkler systems and a fully fenced yard in a quiet, private setting. Set in a peaceful cul-de-sac, this turnkey home offers the perfect blend of style, comfort, and location. Schedule Your Private Showing Today
162nd Ave, West on 39th, N on 157th Ave., E on 42nd Ave, S on 157th, home on Right
Dwelling Type: Residential
Subdivision: PRIMROSE COURT
Year Built: 1993, County: US
162nd Ave, West on 39th, N on 157th Ave., E on 42nd Ave, S on 157th, home on Right
Listing is courtesy of Berkshire Hathaway HomeServices NW Real Estate
Sign in to your account to continue