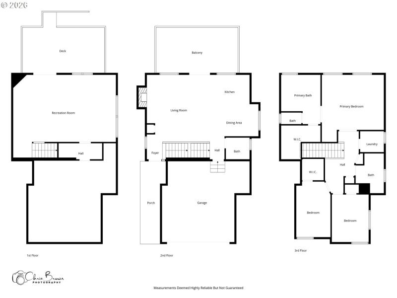
Welcome to this home where comfort and nature blend seamlessly. The living room offers a cozy fireplace, slate flooring, & a sliding door that opens to the first of two decks. Step outside and you’ll feel like you’re in a tree house, as this property backs to green space with mature trees and a creek, offering peaceful views and privacy.The well-appointed kitchen has granite countertops, an eating bar, and stainless steel appliances, and opens seamlessly to the dining area, perfect for entertaining or casual meals.Upstairs, the primary suite is a true retreat with double-door entry, a cathedral ceiling, walk-in closet, and an ensuite bathroom with double vanity. Two additional bedrooms, a full bathroom, and a conveniently located laundry room complete the second level.The lower level offers a spacious family room, storage closet, and access to the crawlspace for even more storage. A sliding door leads to the second deck, this one covered, where you can relax & enjoy nature year-round. There are also stairs down to the backyard and green space. Updates include a new roof and upper deck in 2025; primary shower remodel in 2024; and new kitchen appliances in 2023
Beef Bend to Colyer Way
Dwelling Type: Residential
Subdivision: N/A
Year Built: 2002, County: US
Beef Bend to Colyer Way
Listing is courtesy of Berkshire Hathaway HomeServices NW Real Estate
Sign in to your account to continue