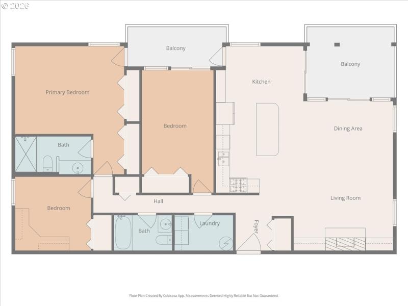
Welcome to The Peg Tree, an intimate 10-unit building in Lake Oswego, where refined living meets scenic views. This third-floor residence captures Mt. Hood views and a peek of the lake from two private balconies, including one with radiant heat for extended seasonal enjoyment. The open-concept living area is anchored by a modern gas fireplace, creating a warm yet sophisticated gathering space. The kitchen showcases granite countertops, a gas stove, brand-new dishwasher, warming drawer, and generous cabinetry, thoughtfully designed for both everyday living and effortless entertaining. The spacious primary suite offers direct balcony access and a walk-in shower. A guest room with a built-in Murphy bed also opens to a balcony, providing flexible living options. An additional room with a custom built-in desk creates a dedicated home office or creative workspace. Elevator access, two deeded parking spaces, private storage room and a heated swimming pool enhance the ease of ownership, ideally situated near the shops, dining, and parks of downtown Lake Oswego. Rarely do Lake Oswego condos combine Mt Hood views, multiple outdoor living spaces, and the intimacy of a 10 unit building, making this home a special opportunity in one of the area's most desirable locations. OFFER RECEIVED. DEADLINE FOR ALL OFFERS IS 3/7 BY 5 P.M..
Hwy 43, E on Leonard to Peg Tree Condominiums, Corner of Leonard & Durham St
Dwelling Type: Residential
Subdivision: OLD TOWN LAKE OSWEGO/PEGTREE
Year Built: 1971, County: US
Hwy 43, E on Leonard to Peg Tree Condominiums, Corner of Leonard & Durham St
Listing is courtesy of Windermere Realty Trust
Sign in to your account to continue