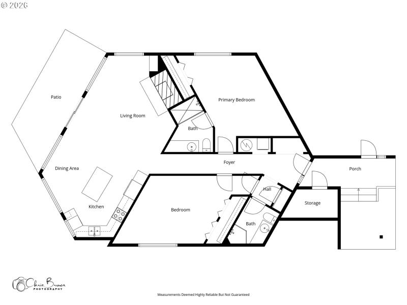
Ever dreamed of your own Mt. Hood retreat — a place to escape and unwind in a serene mountain setting? This beautifully updated ground-level 2 bed, 2 bath condo in Fairway Estates offers the perfect balance of comfort, convenience, and year-round adventure. Situated along the Mt. Hood Oregon Resort 27-hole golf course, the home enjoys peaceful views of manicured greens and surrounding forest. Inside, the bright open-concept layout is filled with natural light from large windows, creating a welcoming space for relaxing or entertaining. The updated kitchen features modern appliances, generous counter space, and bar seating ideal for casual dining.The charming stone wood-burning fireplace is perfect for cozy evenings after skiing, snowshoeing, or exploring Mt. Hood’s renowned slopes just a short drive away. The spacious primary suite has an attached and updated bath, while the second bedroom and full bathroom provide flexibility for guests or potential rental use. Being ground-level, the condo offers easy access and seamless flow to the patio — great for morning coffee or unwinding in the fresh mountain air. An exterior storage unit just outside the entry provides room for skis, bikes, golf clubs, and all your outdoor gear. There is currently an additional storage unit in the carport parking spot for all your extra needs. Residents enjoy access to the condo clubhouse with workout room, meeting space, and outdoor BBQ area. Located just minutes from hiking, biking, rivers, skiing, golf, and local restaurants, this location delivers true four-season recreation. Whether you’re seeking a full-time home, weekend getaway, or investment opportunity this Mt. Hood condo offers the lifestyle you’ve been looking for. Currently an STR, furnishings negotiable.
HWY 26 to Welches Rd, left on Fairway ESTATES Rd, stay left past golf club, end unit, right side
Dwelling Type: Residential
Subdivision: N/A
Year Built: 1967, County: US
HWY 26 to Welches Rd, left on Fairway ESTATES Rd, stay left past golf club, end unit, right side
Listing is courtesy of Keller Williams Realty Professionals
Sign in to your account to continue