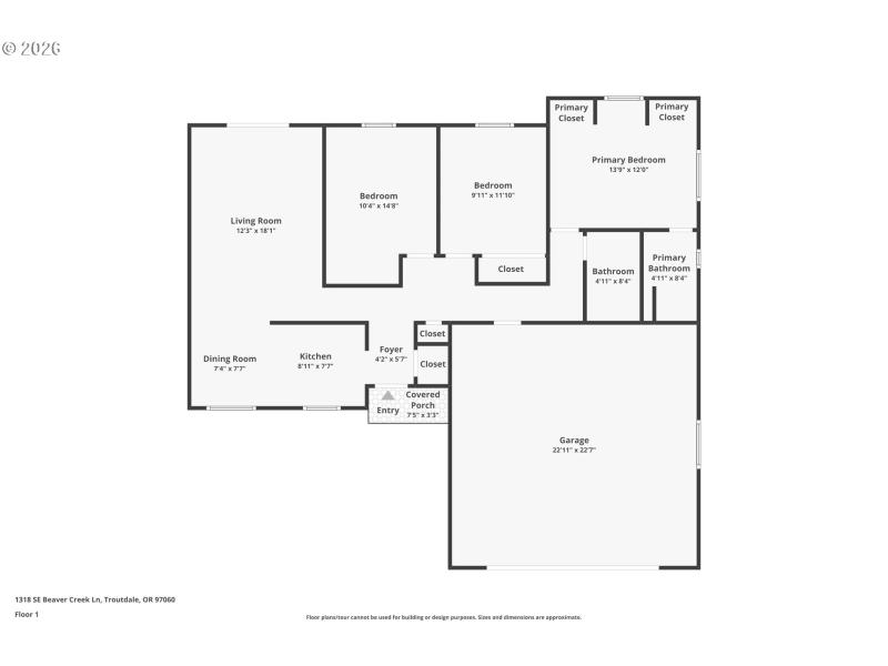
Nestled in one of Troutdale’s most popular neighborhoods, this single-level ranch home backs to a peaceful greenbelt with amazing views and is just a short walk to trails, Kiku Park, and the Sandy River. Offering 3 bedrooms and 2 baths, the thoughtfully designed floor plan features great flow from the kitchen to the living room, creating an inviting space for everyday living and entertaining. The spacious primary suite includes double closets and a charming bay window that brings in beautiful natural light. Outside, the huge fenced backyard is perfect for play and gatherings. An attached two-car garage adds practicality to this well-located home that combines comfort, function, and access to the outdoors. Home warranty being offered by the seller!
Troutdale Road to Beaver Creek Lane
Dwelling Type: Residential
Subdivision: N/A
Year Built: 1980, County: US
Troutdale Road to Beaver Creek Lane
Listing is courtesy of Opt
Sign in to your account to continue