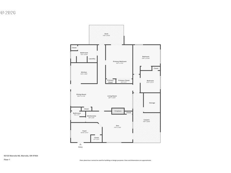
More home for your money! If you are looking for an option with a lot of square footage and bedrooms in an affordable price range, look no further. This home is 4-bedroom, 2 bathroom on a .13 acre lot and just 10 miles to Springfield. The home could use some refreshing, but it is fully livable and move-in ready with a bunch of updates already done. Brand new roof, updated windows, updated electrical and more. It’s also flexible and filled with opportunity - the zoning is Rural Commercial, plus it has great separation with a 2nd living space, kitchenette and multiple entrances to the home, perfect for multigenerational living. The primary bedroom is oversized with patio access to the farmland and river views behind the home. Main living room features a pellet stove to heat the home. Hardwood and laminate floors throughout. Outside you have plenty of parking, a carport with large shed and a fenced yard. This is simply a really unique property that blends opportunity, versatility and charm.
Marcola Road to..... house. It's on the right. Or left if you come from Sweet Home.
Dwelling Type: Residential
Subdivision: N/A
Year Built: 1952, County: US
Marcola Road to..... house. It's on the right. Or left if you come from Sweet Home.
Listing is courtesy of Hybrid Real Estate
Sign in to your account to continue