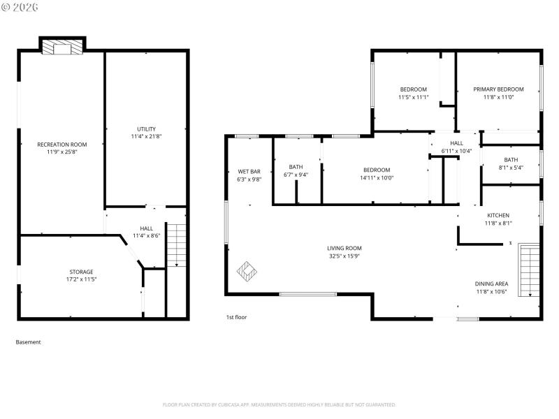
Step back in time with this charming retro-inspired fixer two-story home, lovingly cared for by the same owner for more than 50 years. The main level features a comfortable living room with a cozy pellet stove and wet bar—perfect for relaxing or entertaining. Three bedrooms and two bathrooms are conveniently located on the main floor. Downstairs, the spacious family room includes a second pellet stove and a sliding door that opens to the backyard. Additional highlights include a generous two-car garage and easy access to nearby restaurants and shopping along 82nd Avenue, as well as quick freeway connections and outdoor recreation at Rocky Butte Natural Area. Don’t miss this hidden gem!
NE Fremont Dr to NE 89th Ave
Dwelling Type: Residential
Subdivision: N/A
Year Built: 1954, County: US
NE Fremont Dr to NE 89th Ave
Listing is courtesy of Real Broker
Sign in to your account to continue