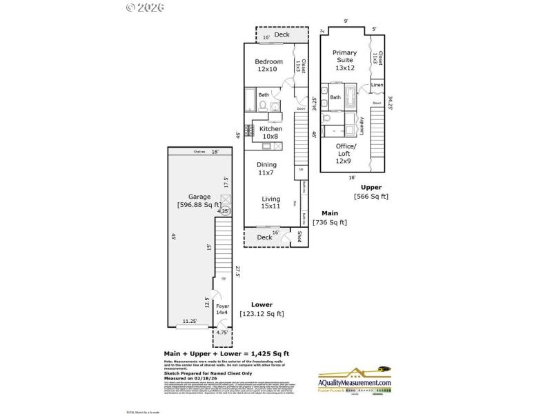
OPEN SATURDAY 3/7 11-1PM Welcome to the Village of Forest Heights! This early development for the neighborhood secured premium access to parks, restaurants, trails & amenities. This townhome-style condo gives the privacy and direct access of a home, yet is maintained through a well-managed association. Cedar siding, newer composition roof and recently recoated decks will give the next owners peace of mind for many happy days. The foyer greets with slate tile floors and Bamboo stairs lead to the living level. 17' dramatic vaulted ceilings & two-stories of windows floor bathe the open layout with glorious south-facing light. A gas fireplace is flanked by built-ins & bookshelves. A sliding door opens to a front deck, with large storage closet, at the ready for morning coffee or afternoon refreshments. Bamboo floors lead through the open layout between the living, dining & kitchen offering cohesion & connection. The remodeled kitchen boasts newer appliances, including a refrigerator with a convertible door on one side plus an ice maker & water dispenser on the other. Slab granite countertops complement the mosaic tile backsplash, highlighted by under-cabinet lighting. Pullout organizer grace cabinets & closets maximizing storage options. A large back patio, off the guest room, is perfect for outdoor dining & barbecuing. The top floor hosts the luxurious primary suite, with vaulted ceilings, double passthrough closets, & an en suite bathroom with double sinks, a soaking tub & a shower. The over-sized tandem garage offers extra space for a workshop, hobbies, bikes and gear. Additionally a large storage room sits off the living room deck. The location is 2 blocks to the Village restaurants & conveniences. Nearby trails lead to Mill Pond Park which hosts summer concerts & holiday festivities. A free shuttle will pick up residents and take them to community stops & Max line. 15 minutes to downtown Portland with an breezy commute to Beaverton & Hillsboro. [Home Energy Score = 9. HES Report at https://rpt.greenbuildingregistry.com/hes/OR10244848]
Miller Road to Alder Grove Lane - Park in driveway for showings
Dwelling Type: Residential
Subdivision: FOREST HEIGHTS
Year Built: 1998, County: US
Miller Road to Alder Grove Lane - Park in driveway for showings
Listing is courtesy of Windermere Realty Trust
Sign in to your account to continue