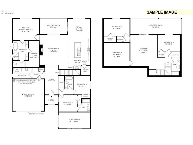
Model Home Hard Hat Event This Sunday 12 PM to 4 PM. Explore build to order options with onsite sales team. Imagine waking up to sweeping views of the Columbia River, where every sunrise feels like it was made for you. At The Bluffs at Granite Highlands, the Murus Farmhouse on Homesite 14 offers a rare opportunity to build your dream home from the ground up and make it entirely your own. Construction has not yet begun on this home, allowing you to personalize your layout, select permit options, and work with our Design Studio to curate every finish and detail. Create spaces that reflect how you live, from a chef-inspired kitchen and seamless indoor-outdoor living to quiet corners overlooking the Gorge. Located within minutes of downtown Camas and Washougal, the community offers easy access to dining, hiking, and recreation. Nestled just up the hill from the new Hyas Point Waterfront development, residents are perfectly positioned at the forefront of exciting growth including the Washougal Town Center Revitalization Project. Only about 20 minutes to PDX, Palisades Town Center, and the Vancouver Waterfront. Make an appointment or stop by our sales center on N. Y Street to learn more. Model Home frame walks of a similar floor plan available on Sundays & most Saturdays - MUST check in with onsite Sales Team first before entering homes. Taxes not yet assessed. Photos are of similar floor plan/rendering, not actual home.
From 3rd Ave. left on LeBrrun BLVD, then left on 4th St, then right on Y ST - Office on N. Y ST.
Dwelling Type: Residential
Subdivision: BLUFFS AT GRANITE HIGHLANDS
Year Built: 2026, County: US
From 3rd Ave. left on LeBrrun BLVD, then left on 4th St, then right on Y ST - Office on N. Y ST.
Listing is courtesy of Toll Brothers Real Estate Inc
Sign in to your account to continue