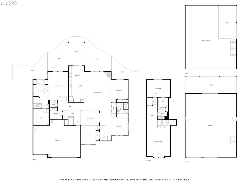
Falcons Landing a community of large lots, outbuildings and planes! Take flight from a private airstrip surrounded by beautiful custom homes and view of mount hood. Master suite on the main floor . Acreage lot on position A and vies front to back as well as positioned for privacy. 4 bedrooms, office , 4 bathrooms, 3 car garage, dog wash, covered patio, and much more! Oversized island in Chef's kitchen perfect for entertaining. Lots of exterior hardscaping. Garden, RV parking, Boat parking, and an out building that will not disappoint. Outdoor fire pit , fenced partially, high end appliances, 95 efficient HVAC, zonal heating, water softener, 2nd story bonus with mini suite. You do not have to be a pilot to appreciate this modern craftsman home.
Redhaven to 326th to the end of culdasac on the left
Dwelling Type: Residential
Subdivision: N/A
Year Built: 2019, County: US
Redhaven to 326th to the end of culdasac on the left
Listing is courtesy of Realty First
Sign in to your account to continue