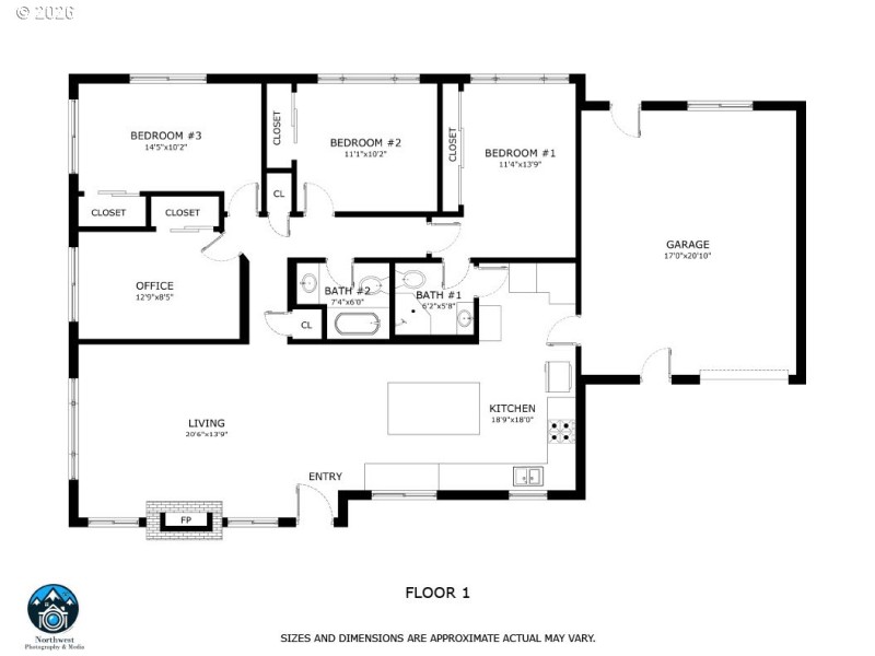
Welcome to this charming Mid-Century ranch nestled on a spacious 0.74-acre lot in the desirable Pleasant Hill school district, and . This inviting 4-bedroom, 2-bathroom home offers 1,322 square feet of comfortable living with thoughtful updates throughout. The open-concept living area featuring laminate flooring installed in 2021 and a bright, spacious living room. The beautifully remodeled kitchen, updated in 2025, blends style and functionality, with a large island, and thoughtful touches in stainless appliances, built-ins, a coffee nook, and dedicated desk space with a view. The primary suite includes its own attached bathroom. The hall bathroom was previously taken down to the studs and remodeled with a new shower and tub in 2017. Additional interior improvements include a new toilet and a ceiling fan with light installed in 2025. This home also offers extensive major system upgrades for peace of mind, including a new roof installed in December 2025, an upgraded electrical panel completed in 2025, a heat pump installed in 2022 for efficient heating and cooling, a water purification system added in 2024, a septic tank riser installed in 2025, and upgraded plumbing in both the kitchen and bathrooms completed in 2025. Outside, the property shines, featuring grass, mature trees, and ample space for outdoor living, gardening, or even a small pasture. The exterior of the home was freshly painted in 2024, adding to its inviting curb appeal. The property is well-equipped for those who need space for hobbies, projects, or storage, offering RV hookups with 50-amp service, an attached garage, and plenty of additional parking for vehicles, trailers, and recreational toys. A large pole barn/shop with electricity provides excellent workspace or storage, complemented by a large garden shed and a freestanding wood storage shed. Recreation possibilities abound with 847 acre Elijah Bristow State Park nearby as well as Dexter Lake for boating, fishing, horseback riding and hiking.
Hwy 58 to north on Rattlesnake Rd to Brown, on corner of Brown and Wheeler
Dwelling Type: Residential
Subdivision: N/A
Year Built: 1959, County: US
Hwy 58 to north on Rattlesnake Rd to Brown, on corner of Brown and Wheeler
Listing is courtesy of Keller Williams Realty Eugene and Springfield
Sign in to your account to continue