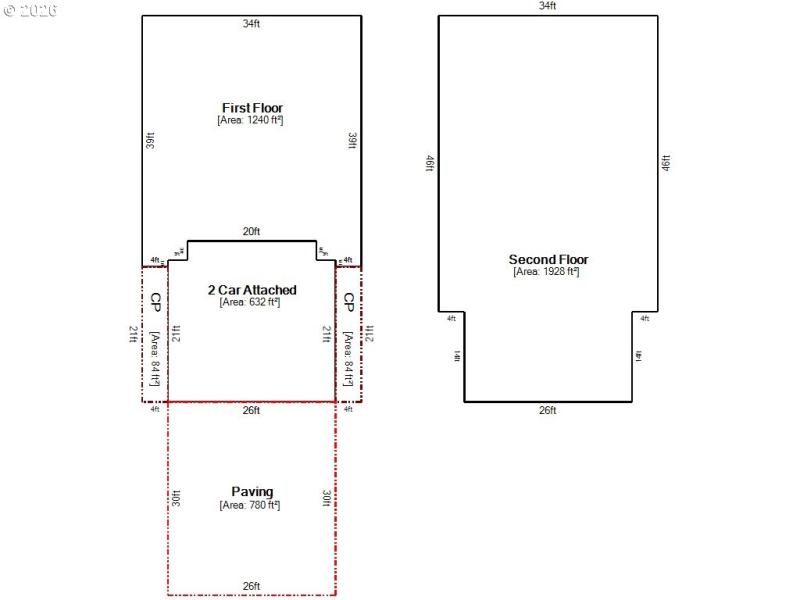
BUILT IN 2022, THIS SWANSON CONSTRUCTION BUILT DUPLEX WITH STRONG INCOME IS UP FOR GRABS! This newer duplex features mirrored 3 bed/2 bath units with Granite Countertops in Kitchen(s) and Bathroom(s), LVP Flooring Throughout, Separate 1-Car Garages and Fully-Fenced with fencing between units, each Unit having it's own private side and back yards. Fiber Cement siding, along with 4 year old Roof make this a WELL-BUILT, STURDY INVESTMENT FOR YOUR REAL ESTATE PORTFOLIO. 24 Hour Notice for Showing Required - DND Tenants please.
W on Newmark, L on S Morrison, R on Fulton to Property
Dwelling Type: MultiFamily
Subdivision: N/A
Year Built: 2022, County: US
W on Newmark, L on S Morrison, R on Fulton to Property
Listing is courtesy of Pacific Properties
Sign in to your account to continue