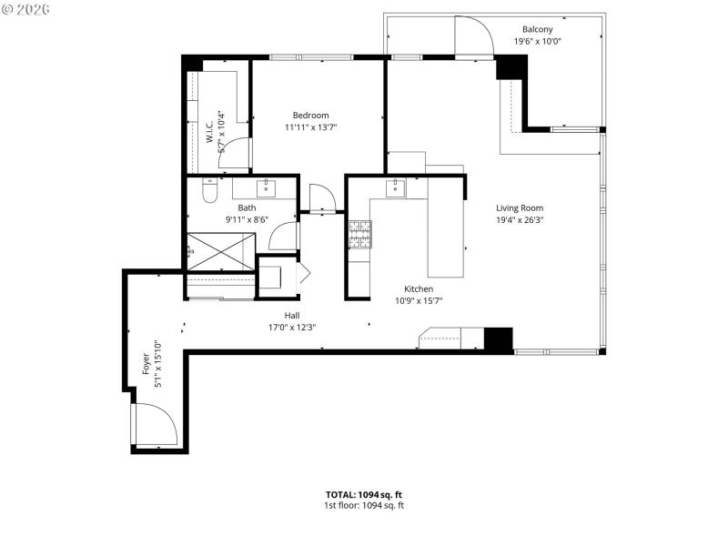
Stunning home along the riverfront at the Strand with city, river & west hills views. Fully remodeled for modern living, this one bedroom + den features luxury finishes, thoughtful additions, high-end appliances, custom cabinetry & built-in storage throughout. The open concept U-shaped gourmet kitchen is the heart of the home with ample counter space, handmade tile backsplash, Wolf Range, SubZero refrigerator, and a built-in bar area with storage & wine cooler. Both kitchen & living overlook panoramic views of the west hills, Willamette River & Hawthorne Bridge. Adjacent to the living is a super functional den space with built-in storage, hideaway desk, queen-sized murphy bed/sofa system, and wrap-around outdoor deck. The south facing primary bedroom features a walk-in closet with custom built-ins & hardwood floors. The bathroom has been completely custom remodeled with walk-in rain shower with bench seating and Ann Sacks tile. Home is complete with deeded parking & storage. The Strand is a luxury condominium at the heart of the beautiful Portland Waterfront just steps to restaurants, shops, parks, the riverfront trail, Streetcar, OHSU & Downtown Portland. The best of urban living.
S. Montgomery to River Drive to West Tower
Dwelling Type: Residential
Subdivision: STRAND, RIVERPLACE, WATERFRONT
Year Built: 2006, County: US
S. Montgomery to River Drive to West Tower
Listing is courtesy of Sean Z Becker Real Estate
Sign in to your account to continue