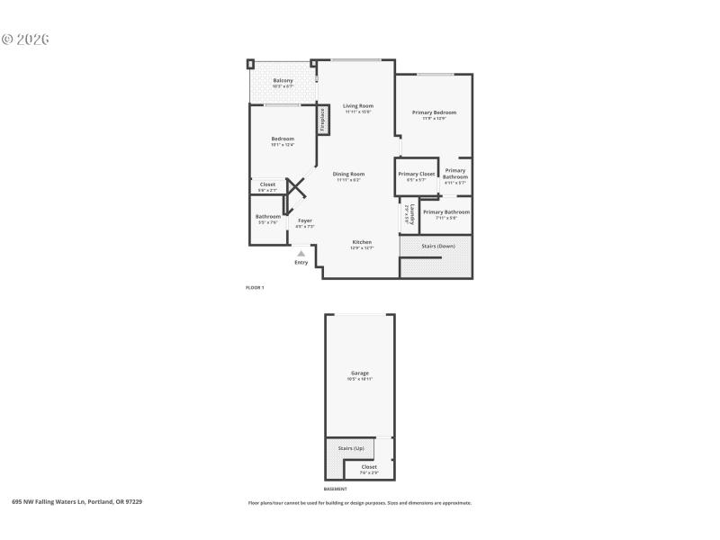
This 2 bed 2 bath condo lives like a single family home. Pull into your garage and take the private staircase up one flight of stairs and land right in your kitchen. Territorial views that give you great sunsets and a peek at the Cascades on clear days which you can enjoy as you overlook the green space from your private covered balcony. Great location close to lots of amenities and walking paths. Ready to move in. Freshly painted and seller is providing flooring credit at closing to make this home your own.
Cornell south on NW 118th, Right on winter park terrace, left on falling water
Dwelling Type: Residential
Subdivision: N/A
Year Built: 2007, County: US
Cornell south on NW 118th, Right on winter park terrace, left on falling water
Listing is courtesy of Premiere Property Group, LLC
Sign in to your account to continue