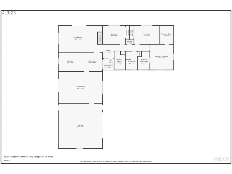
First time on the market with this ranch home on 3+ acres bordering Scappoose Creek. Relax on the deck and take in all the wildlife around you. Comfortable living with the large living and family rooms. Good counter and cabinet space make holiday meals and gatherings easy. Primary bedroom and bathroom plus two additional bedrooms give you the perfect layout. You will appreciate the shop and RV carport for extra work, play or storage space. Don't miss the fruit trees and the walking path to the creek where you can enjoy the water or wander the CZ trail from the top of the driveway. Easily commutable to Portland or Washington County or only a few minutes from Scappoose/St Helens for all the wonderful community events. Property is looking for a new owner to love after all these years. Please don't travel down the driveway without an appointment to view.
Hwy 30 to Scappoose Vernonia Hwy, about 6 miles up to home on left.
Dwelling Type: Residential
Subdivision: N/A
Year Built: 1975, County: US
Hwy 30 to Scappoose Vernonia Hwy, about 6 miles up to home on left.
Listing is courtesy of RE/MAX Powerpros
Sign in to your account to continue