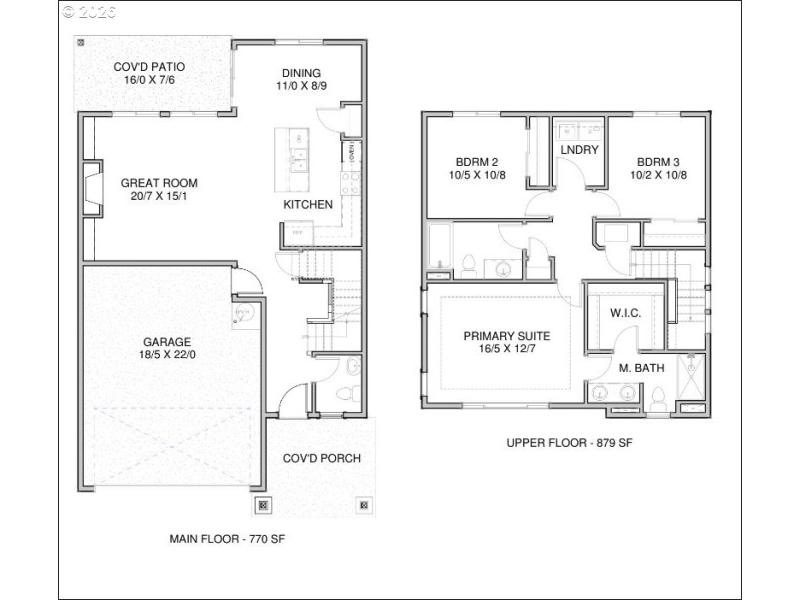
Estimated Start Date March 9th - build ready. The 1649 plan boasts an open concept living space with ample natural light, 9' ceilings throughout the main floor and a large great room complete with a gas fireplace. The kitchen features quartz countertops, a large island with eating bar, as well as a separate dining nook complete with laminate flooring. Upstairs you will find 3 bedrooms, including a large primary suite with an ensuite bathroom and walk in closet. Enjoy the oversized laundry room centrally located on the second floor for ultimate convenience! Front yard landscaping and maintenance are included plus a nice size fully fenced backyard! *Sample photos. Come see me all this home has to offer! Other homes also available.
I-5 N, TAKE EXIT 21, RIGHT ONTO LEWIS RIVER RD, LEFT ON MCCRACKEN RD
Dwelling Type: Residential
Subdivision: ALDER & ASH
Year Built: 2026, County: US
I-5 N, TAKE EXIT 21, RIGHT ONTO LEWIS RIVER RD, LEFT ON MCCRACKEN RD
Listing is courtesy of Holt Homes Realty, LLC
Sign in to your account to continue