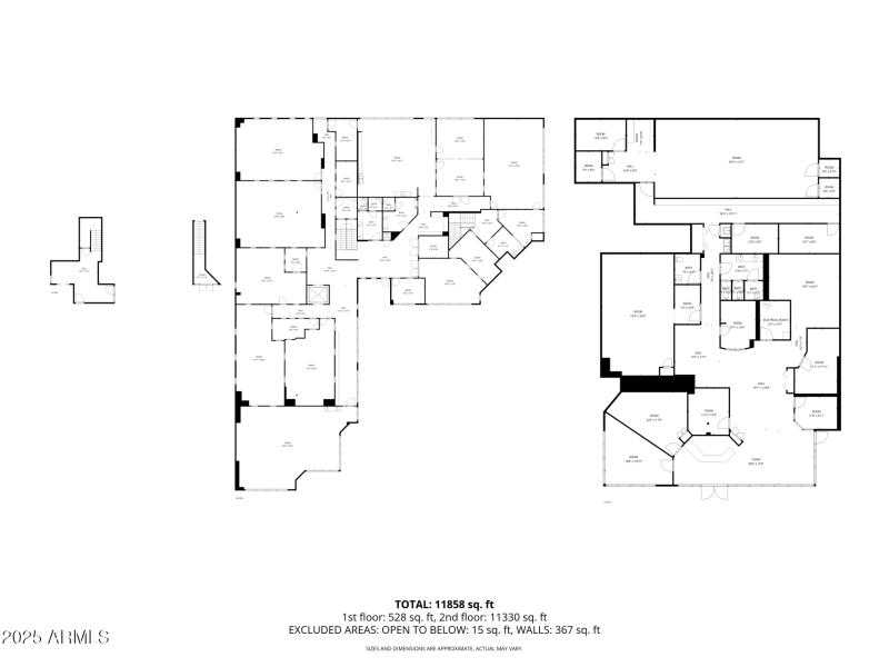
Spacious and versatile two-story office building, previously used as a school. This property can be leased in its entirety or divided to lease either the upstairs or downstairs unit! Ideal for office, educational, medical, or institutional use. Features multiple private offices/classrooms, conference rooms, reception area, restrooms, student lockers, and break areas. Solid construction with flexible floor plan allows for easy reconfiguration. Ample parking and ADA accessibility. Conveniently located near I-17 for easy access. Great opportunity for investors, nonprofits, or businesses seeking a move-in-ready or customizable space.
From I-17 - go west on Glendale Ave. Property is on the south side of the road.
Dwelling Type: Comm/Industry Lease
Subdivision: AMBASSADOR HTS 9-14
Year Built: 1988, County: N/A
From I-17 - go west on Glendale Ave. Property is on the south side of the road.
Listing is courtesy of Century 21 Northwest
Sign in to your account to continue