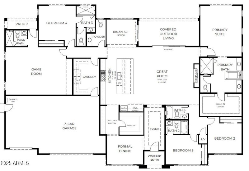
Currently under construction by Thomas James Homes, this single-level Scottsdale home is scheduled for completion Summer 2026. Featuring the new Sage floorplan, the home showcases clean architectural lines, high-volume ceilings, and a sophisticated open-concept layout designed for seamless flow and elevated living. The chef's kitchen is equipped with Wolf and Sub-Zero appliances, designer finishes, and generous space for both casual dining and entertaining. A dedicated game room with convenient pool bath extends the living space, ideal for relaxation or hosting gatherings. Step outside to a private, professionally landscaped backyard with a sparkling pool and ample space for outdoor enjoyment. A spacious 3-car garage and striking modern elevation complete this exceptional residence. Ideally located close to Kierland's shopping and dining and Scottsdale Airport for easy travel access.
North of Thunderbird Road on 60th Street to Ludlow Dr, East to Property on North Side of Street
Dwelling Type: Residential
Subdivision: THUNDERBIRD DESERT ESTATES UNIT 3
Year Built: 2026, County: N/A
North of Thunderbird Road on 60th Street to Ludlow Dr, East to Property on North Side of Street
Listing is courtesy of Thomas James Homes
Sign in to your account to continue