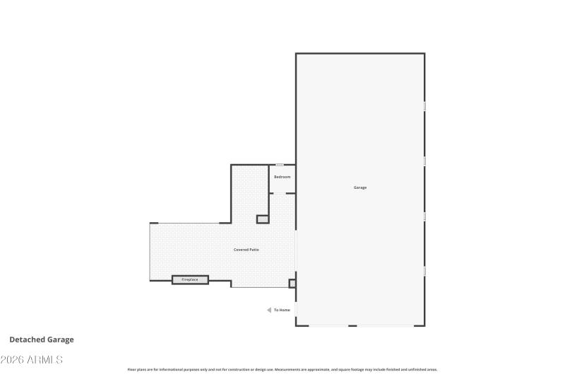
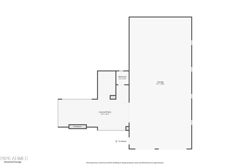
Experience elevated living in Weston Ranch, a hidden gem in Gilbert...perfect for car collectors or enthusiasts with a FULL SIZE RV garage (55'x30') with additional 4+ car storage in addition to the STUNNING 4 car showcase garage with marbleized epoxy coated floors and state of the art LED honeycomb lighting for displaying your favorite cars!
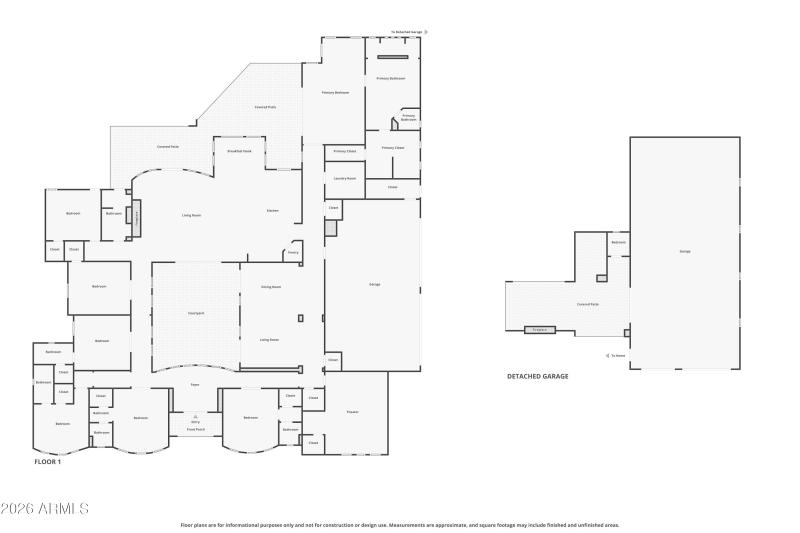
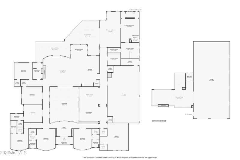
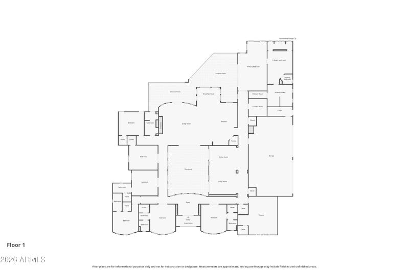
This stunning 7-bedroom, 6 full + 2 1/2 bathroom estate redefines luxury with spacious living, stylish updates, and an entertainer's dream design. From the moment you step inside, you're greeted with brand-new wide-plank wood floors, fresh carpet and paint that create a light and inviting atmosphere throughout.
Upon entry you'll be drawn into the courtyard in the center of the home with 360 degree views of the entire home...perfect for enjoying the fire and fountain features while having your morning coffee or an evening cocktail. This home offers plenty of room to gather, including expansive living areas and even a private home theater for the ultimate movie night experience.
Outdoors, your very own resort-inspired retreat awaits on the nearly acre lot. Enjoy dipping into the oversized negative-edge pool with spillover, get your exercise in by doing laps in the extended lap pool area, or swim up and sit at the swim up bar while hosting family & friends. Relax in the spa, or practice your short game on the custom turf putting green. A built-in BBQ and outdoor kitchen set the stage for unforgettable backyard entertaining in this true resort paradise!
Car enthusiasts will love the RV garage, which not only provides abundant parking (4+ cars PLUS RV) but also provides a convenient half bathroomfor the pool area perfect for seamless indoor-outdoor living.
Located in the exclusive gated community of Weston Ranch, this property combines elegance, comfort, and amenities you'll enjoy every single day. Weston Ranch sits just across Queen Creek Road from Gilbert Regional Park where you'll love all of the outdoor opportunities the park provides like a splash pad, pickleball and tennis courts, children's play parks, sport courts, lake with walking trails, amphitheater for concerts in the park, and the forthcoming Surf Park with lazy river, wave pool and so much more...you can't beat this location if you tried! Minutes to San Tan Mall or Queen Creek marketplace with so many dining and shopping options you'll never need to go anywhere else! Schedule a private tour to see this amazing home!
South on Higley and west on Ryan to Banning Drive gated entrance. Through gate to left on Fruitvale with home on the corner.
Dwelling Type: Residential
Subdivision: Weston Ranch
Year Built: 2008, County: N/A
South on Higley and west on Ryan to Banning Drive gated entrance. Through gate to left on Fruitvale with home on the corner.
Listing is courtesy of Keller Williams Realty Sonoran Living
Sign in to your account to continue