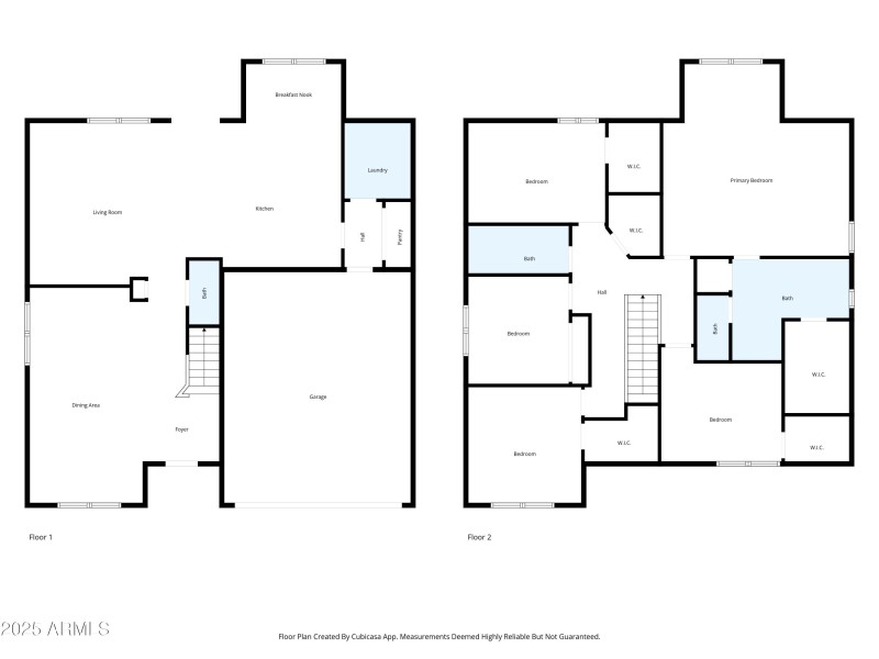
NO HOA!!!! Welcome to this spacious 5-bedroom, 2.5-bath home in the highly sought-after Hunter Ridge subdivision—with no HOA! This beautifully maintained one-owner home offers comfort, space, and unique outdoor features that make it truly one of a kind. Inside, you'll find freshly painted walls and no carpet downstairs for easy maintenance and a clean, modern look. Upstairs, all bedrooms feature brand-new carpet, providing a cozy and refreshed feel. The primary suite is generously sized and includes a private sitting area, perfect for a reading nook, nursery, or quiet retreat. The open layout offers flexibility for families, guests, or home offices, with five full bedrooms and 2.5 baths. Step outside to a large backyard designed for both relaxation and function, complete with a private pool, lush grass, a storage shed, a chicken coop, and a tortoise enclosureideal for animal lovers, hobby farmers, or outdoor enthusiasts. This home has it all, with no HOA to limit your lifestyle. Don't miss the opportunity to own a truly versatile and special property in a quiet, established neighborhood.
From Union Hills and 91st ave, take Union Hills west to 89th ave, turn south onto 89th ave. Take 89th ave to John Cabot Rd. Head West onto John Cabot rd. Take John Cabot rd to 89th Ln. Go south onto 89th ln. Take 89th ln to Villa Rita Dr. House on Right.
Dwelling Type: Residential
Subdivision: HUNTER RIDGE
Year Built: 1997, County: N/A
From Union Hills and 91st ave, take Union Hills west to 89th ave, turn south onto 89th ave. Take 89th ave to John Cabot Rd. Head West onto John Cabot rd. Take John Cabot rd to 89th Ln. Go south onto 89th ln. Take 89th ln to Villa Rita Dr. House on Right.
Listing is courtesy of Realty ONE Group
Sign in to your account to continue