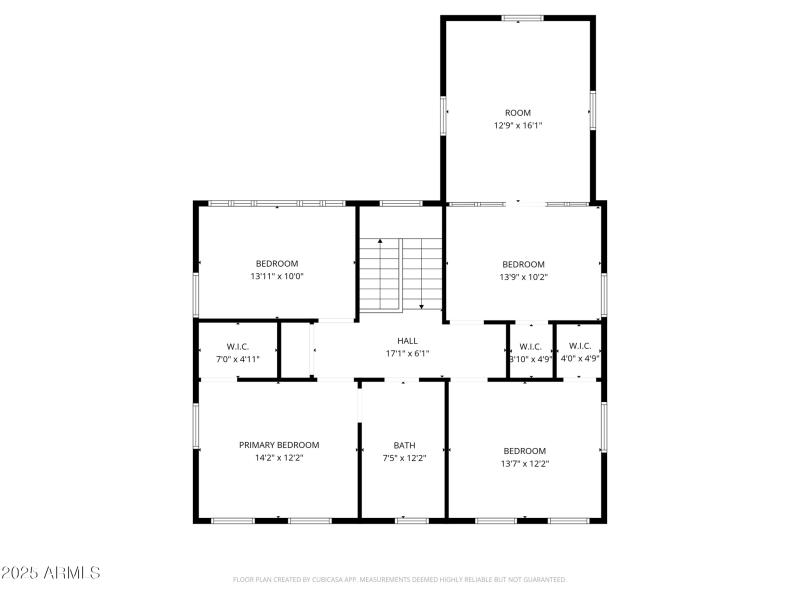
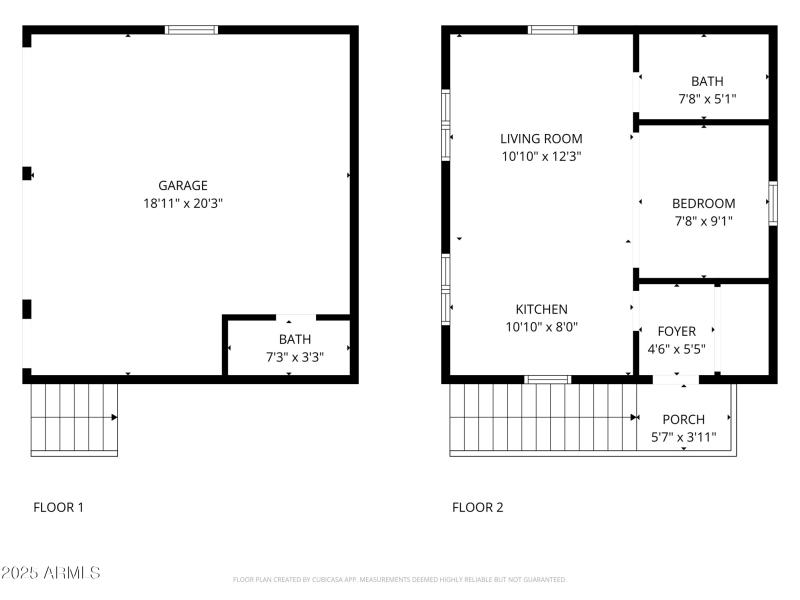
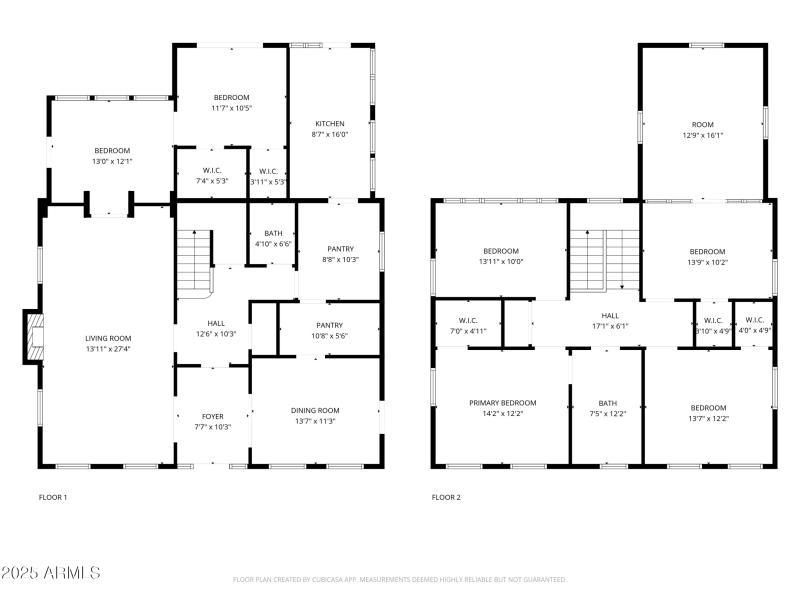
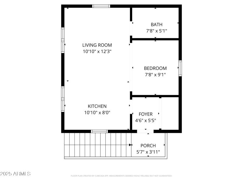
A rare opportunity, the Historic Harry J. Felch House. The 2,967 sq ft main residence offers 5 bedrooms and 3 full and 2 half bathrooms. It is situated on a 14,000 sq ft lot with a pool, and is complemented by an 800 sq ft carriage house, with 2-car garage and EV charging! Preserved original details include etched faux-finished plaster in the formal foyer, period light fixtures including right in the entry room, unpainted paneled doors with glass knobs, built-in cabinetry in living room and parlor, vintage bath tile and fixtures, French doors, oak floors, a grand staircase with landing, abundant natural light, and a basement.
The carriage house is excellent for hosting guests, family, or to be used for subletting.
SOUTH ONE BLOCK TO LYNWOOD--EAST TO PROPERTY IN ROOSEVELT HISTORIC DISTRICT- HARRY J. FELCH HOUSE
Dwelling Type: Residential Lease
Subdivision: KENILWORTH BLKS 7-14
Year Built: 1920, County: N/A
SOUTH ONE BLOCK TO LYNWOOD--EAST TO PROPERTY IN ROOSEVELT HISTORIC DISTRICT- HARRY J. FELCH HOUSE
Listing is courtesy of Bullseye Property Management, LLC
Sign in to your account to continue