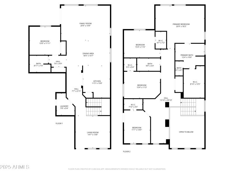
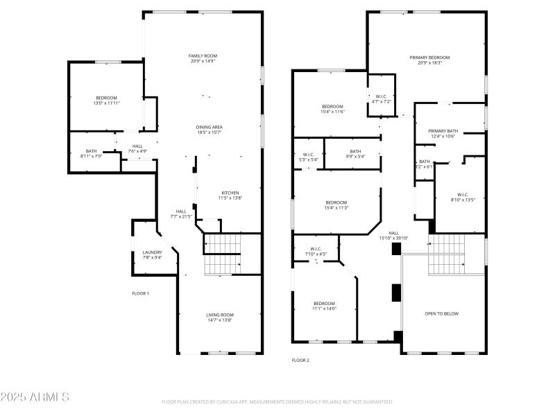
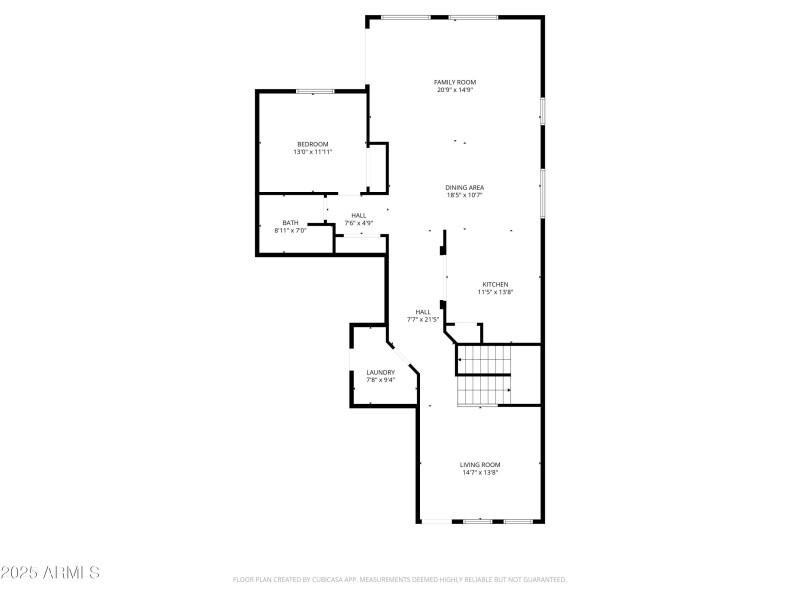
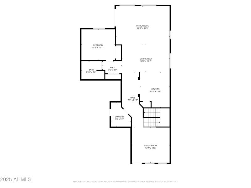
The search is over! Welcome to this delightful home featuring a 3-car garage and a thoughtfully landscaped front yard. You're greeted by a serene living room with soaring ceilings, abundant natural lighting, a soothing palette, and durable tile flooring. Gather loved ones in the great room, complete with sliding door access to the backyard. The gourmet kitchen boasts granite counters, ample wood cabinets, recessed lighting, a tile backsplash, SS appliances, a walk-in pantry, and a two-tier peninsula with a breakfast bar. Upstairs, the loft is ideal for a reading nook or a lounge. The primary bedroom showcases an ensuite with dual sinks and a convenient walk-in closet. The enchanting backyard offers a covered patio, pristine artificial turf, and a sparkling pool. Make this gem yours today!
Head southwest on N Gantzel Rd, Continue onto Johnson Ranch Blvd, Turn right onto N Sedona Pl, Turn left onto E Mule Train Trail. The property will be on the right.
Dwelling Type: Residential
Subdivision: JOHNSON RANCH UNIT 16
Year Built: 2005, County: N/A
Head southwest on N Gantzel Rd, Continue onto Johnson Ranch Blvd, Turn right onto N Sedona Pl, Turn left onto E Mule Train Trail. The property will be on the right.
Listing is courtesy of Realty ONE Group
Sign in to your account to continue