Welcome to this beautifully maintained home tucked away in a peaceful cul-de-sac in the highly sought-after Higley Groves community of Morrison Ranch.
With its iconic tree-lined streets, charming gas lamp posts, and classic mailboxes, this neighborhood offers the timeless, inviting feel buyers love.
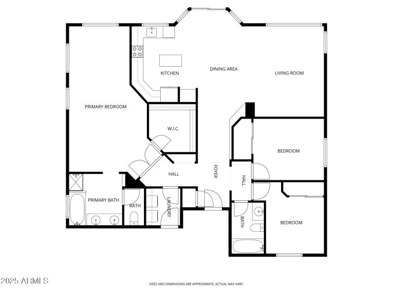
Inside, you'll find 3 spacious bedrooms plus an extended primary suite retreat, which is ideal for a home office, den, nursery, or flexible bonus space. The home also features 2 full bathrooms and a high-quality newer Trane AC unit for dependable comfort. The backyard is a true highlight, featuring a stunning PebbleTec Shasta pool with a waterfall grotto and rock slide, all controlled by a convenient smart tech pool system. The extended covered patio has been recently refreshed, and the low-maintenance turf and rock landscaping make the space perfect for relaxing or entertaining.
Thoughtful upgrades continue throughout the home, including newer kitchen appliances, updated door hardware, modern bathroom faucets, sunshades on the primary suite windows to reduce heat, and a freshly painted garage.
As an added bonus, the home comes with approximately 2.5 years remaining on a full home warranty that includes the pool and all pool equipment. This warranty will transfer to the new homeowner at closing, offering valuable peace of mind.
Don't miss your chance to own a beautifully cared-for home in one of the most desirable neighborhoods in the East Valley!
From Higley, E on Elliot, N on Kenneth, W on Cullumber, Home on right.
Dwelling Type: Residential
Subdivision: HIGLEY GROVES
Year Built: 2000, County: N/A
From Higley, E on Elliot, N on Kenneth, W on Cullumber, Home on right.
Listing is courtesy of HomeSmart Lifestyles
Sign in to your account to continue