Welcome to a truly one-of-a-kind property in Waddell that you won't find anywhere else in the Valley. A ranch, situated on 2 fully fenced acres, this exceptional horse property offers space, privacy, and endless possibilities for a family compound, multigenerational living, or those seeking room to grow.
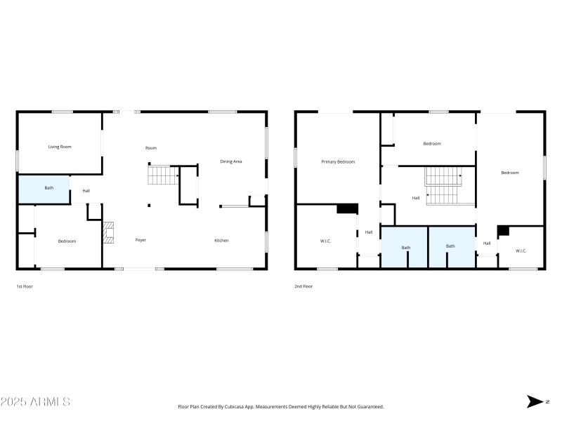
The two-story main home features 2,820 square feet of living space with a thoughtfully designed layout, including a bedroom conveniently located downstairs with a full bathroom. The updated kitchen and bathrooms (3) blend modern finishes with timeless appeal, making the home move-in ready while still offering the charm of a custom property. Adding even more versatility is the detached 390 square foot casita, complete with 1 bedroom and 1 bathroom. Perfect for guests, extended family, or a private home office, the casita is detached from the main house for added privacy and includes covered garages attached to the casita along with a covered carport.
The property is fully enclosed with a 6-foot fence around the entire perimeter and includes an RV gate for easy access. With ample open land, this property is ideal for horses, toys, workshops, or future expansion.
Rare, spacious, and incredibly unique, this Waddell property offers a lifestyle that is nearly impossible to replicate anywhere else in the Valley.
West to 175th Ave North to property
Dwelling Type: Residential
Subdivision: ROMOLA OF ARIZONA GRAPE FRUIT UNIT NO. 43 RESUB BL
Year Built: 1985, County: N/A
West to 175th Ave North to property
Listing is courtesy of LPT Realty, LLC
Sign in to your account to continue