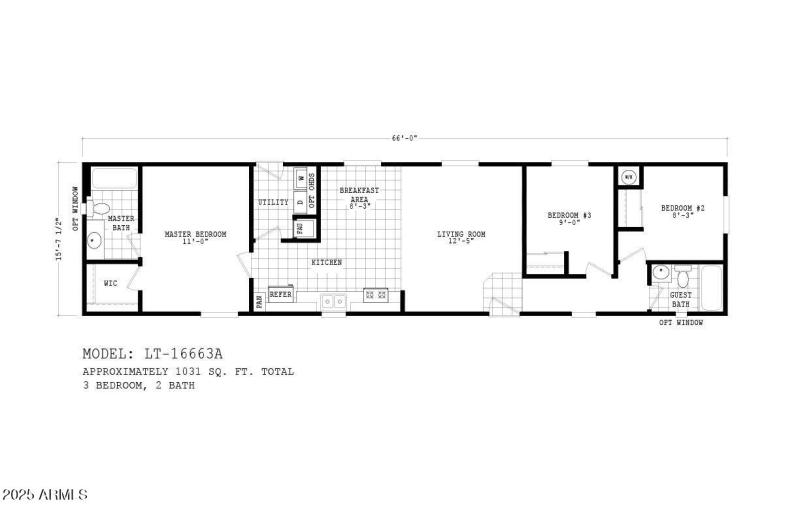
Beautiful new manufactured home on a block stem wall. 2 x 6 walls. Economical and efficient Natural Gas. Nice 360 degree views.
Hwy 89 to Big Chino Road. Head West to Kyoto Ave. Turn right or North to first road on Left, Venice Way. Turn Left and go to Singlewide on North side of Venice.
Dwelling Type: Residential
Subdivision: HOLIDAY LAKE ESTATES
Year Built: 2024, County: N/A
Hwy 89 to Big Chino Road. Head West to Kyoto Ave. Turn right or North to first road on Left, Venice Way. Turn Left and go to Singlewide on North side of Venice.
Listing is courtesy of Levie Realty, LLC
Sign in to your account to continue