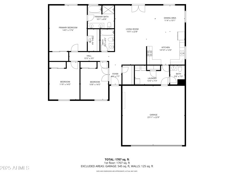
This property is perfect for anyone needing ample space for toys, tools, or hobbies, featuring a 50' x 40' shop with concrete flooring, electrical, and two roll-up doors 14 X 12, 8 X 18. The shop is paired with a beautiful Santa Fe-style home offering 3 bedrooms and 2.5 baths on over an acre of land with block fencing. The home includes granite countertops, abundant kitchen cabinetry, stainless steel appliances, an entrance office that can serve as a third bedroom, a spacious primary suite, and an additional guest bedroom and bath. You'll also enjoy a large laundry room with extra storage, RV slab parking next to the home, fresh exterior paint, and a recently replaced roofâ€''making this property truly move-in ready. Need room for horses? There is plenty of room for stalls
US Hwy 60 & Center ( west) Left on Croser, Right on Lone Mountain, Right on 224th, House at the end of the road.
Dwelling Type: Residential
Subdivision: Meets & Bounds
Year Built: 2005, County: N/A
US Hwy 60 & Center ( west) Left on Croser, Right on Lone Mountain, Right on 224th, House at the end of the road.
Listing is courtesy of Realty Executives Arizona Territory
Sign in to your account to continue