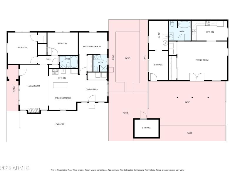
Outstanding opportunity to acquire a single-family home plus a large guest house—offering multiple income streams, ideal multi-generational living, or the perfect configuration for an owner-occupant who wants additional space for a home office or guest suite.
The main home retains its historic turn-of-the-century charm while featuring key updates: a beautifully updated kitchen, original hardwood floors, a spacious layout, 3 sizeable bedrooms, and two lovely bathrooms. The hall bath has a deep claw foot tub & terrazo counter adding to the historic charm.
The guest house (casita) includes a full kitchen and ample entertainment space, making it an excellent rental unit or extended-family option. This versatile property is perfectly located near downtown, uptown, shopping, freeways and more This property may be eligible for an Historic Property Tax credit, saving nearly 50% on property taxes.
From Camelback head south on 16th street, then east on Roma Ave. Home is located just east of Miracle Mile.
Dwelling Type: Residential
Subdivision: MONTECITO
Year Built: 1929, County: N/A
From Camelback head south on 16th street, then east on Roma Ave. Home is located just east of Miracle Mile.
Listing is courtesy of Compass
Sign in to your account to continue