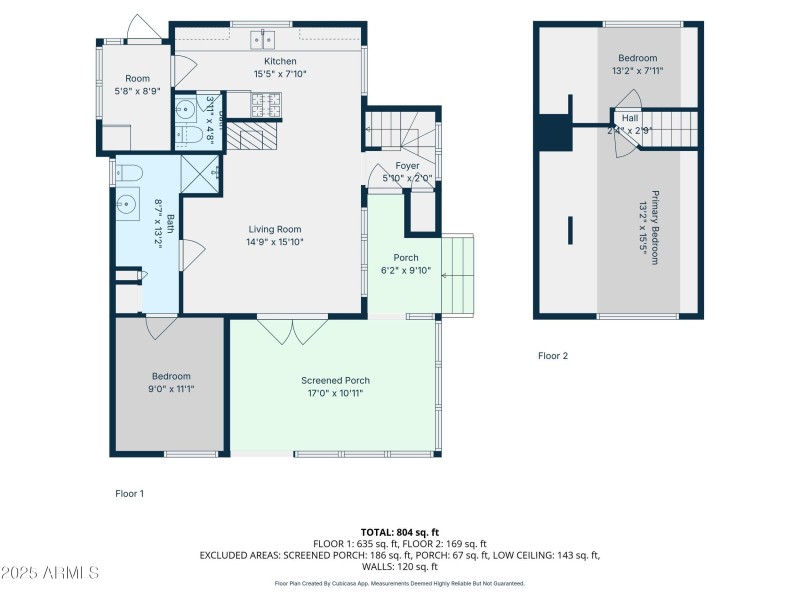
A Legacy Retreat: Historic See Canyon Cabin Backing Tonto National Forest is now available for purchase! Step back in time and own a piece of Christopher Creek history. Arguably situated on one of the finest lots in the highly desired, exclusive See Canyon community, this one-of-a-kind cabin offers an unparalleled connection to nature and a story of a single-family legacy, started in the 1940s. Featuring 3 bedrooms and 1.5 bathrooms, this charming retreat is perfectly positioned for the ultimate escape. The property is bordered by the Tonto National Forest on two sides, guaranteeing endless tranquility and stunning, unobstructed views. See Canyon is a community defined by rarity and reverence for privacy. With just 58 available lots, each a minimum of one acre, opportunities like this are exceptionally scarce. See Canyon is a very unique community approx 58 additional acres of common ground. Surrounded by National Forest. See Canyon has its own water system supported by 3 wells and multiple storage tanks This cabin offers a genuine, unplugged escapea true family sanctuaryas the community strictly prohibits all short- and long-term rentals, ensuring it remains exclusively for primary or secondary homeowners. This isn't just a home; it's a legacy waiting to be continued. (Please follow directions provided vs GPS so you don't get lost!)
Hwy 260 to MM 274.8 (Christopher Creek Loop) .5 mi on Christopher Creek Loop to Morris Meadows Dr. Follow Morris Meadows Dr to See Canyon Dr 0.6mi Turns into Juniper Way just before the water tower. Take driveway to left and the home is on the right.
Dwelling Type: Residential
Subdivision: SEE CANYON HOMES
Year Built: 1955, County: N/A
Hwy 260 to MM 274.8 (Christopher Creek Loop) .5 mi on Christopher Creek Loop to Morris Meadows Dr. Follow Morris Meadows Dr to See Canyon Dr 0.6mi Turns into Juniper Way just before the water tower. Take driveway to left and the home is on the right.
Listing is courtesy of Arizona Resource Realty
Sign in to your account to continue