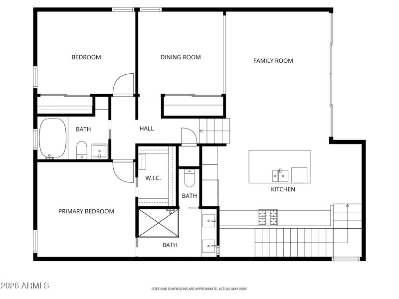
Welcome Home! Discover a rare chance to live in one of only eight detached residences within the exclusive, gated community of Galleries at Turney, perfectly situated in the coveted Biltmore Corridor. This sleek, modern home features 2 bedrooms, a spacious den, and 2.5 baths, showcasing exceptional architecture and thoughtful design throughout.
Soaring 12 ft ceilings and floor-to-ceiling windows fill the main living areas with natural light, complementing the exposed concrete blockwork and high-end finishes. The gourmet kitchen is equipped with premium appliances, and every space reflects a refined, contemporary aesthetic.
Enjoy a low-maintenance private yard with lush turf—ideal for relaxing or entertaining. This LEED-certified residence is also a recipient of multiple AIA awards, underscoring its innovative design and superior craftsmanship.
Experience the perfect blend of luxury, style, and location in this truly special home.
South on 24th St from Camelback Road to Campbell. East on Campbell to 27th St. South to property.
Dwelling Type: Residential
Subdivision: GALLERIES AT TURNEY CONDOMINIUMS
Year Built: 2007, County: N/A
South on 24th St from Camelback Road to Campbell. East on Campbell to 27th St. South to property.
Listing is courtesy of West USA Realty
Sign in to your account to continue