Welcome to this stunning custom estate situated on a full acre with horse privileges and no HOA. From the moment you arrive, the motorized gated entry and fully landscaped exterior set the tone for the exceptional living experience this property offers.
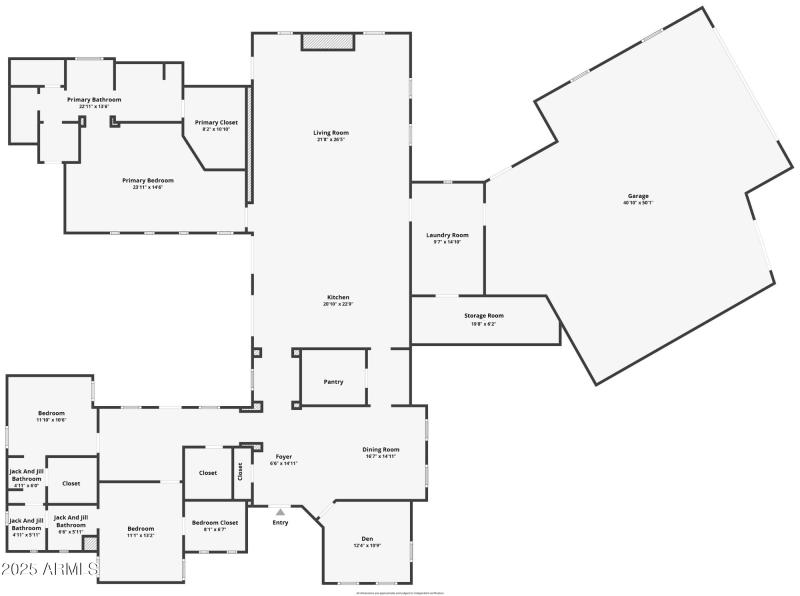
The main home features over 3,000 sq ft of thoughtfully designed space with a tasteful color palette, upgraded finishes throughout, and an abundance of natural light. The layout includes 3 bedrooms, a den with custom built-ins, a bonus room near the secondary bedrooms, a formal dining room, and a butler's pantry. you'll love the oversized garage that can easily fit 4 cars and the tandem space is perfect for a long bed truck or boat.
The chef's kitchen is a true standout: complete with wall ovens, a pot filler, a cooktop stove, granite counters, custom cabinetry, and a huge island perfect for entertaining. The spacious great room offers a fireplace and additional built-ins, creating a warm and inviting space for gatherings.
The primary suite is oversized and luxurious, featuring a jetted tub, separate shower, dual sinks, and a generous walk-in closet. The secondary bedrooms share a convenient Jack-and-Jill bathroom. Storage is abundant throughout the home.
Step outside to find two covered patios, including an outdoor kitchen area complete with a TV, Outdoor BBQ, seating area, and beautiful mountain views: ideal for relaxing or hosting friends and family.
The detached guest house (over 1,200 sq ft) offers upgraded finishes that make it feel like a true second home, not a typical casita. Highlights include a custom front door, full kitchen, laundry room, fireplace, back patio, a guest bath, and an impressively large closet and pantry. Perfect for multigenerational living or long-term guests.
Car enthusiasts and hobbyists will love the massive 42x48 ft RV garage/shop, offering space for five additional vehicles, plus its own bathroom and a 400 sq ft loft. In addition there are 50 amp interior and exterior RV outlets, plumbed for an air compressor, spray foam insulation on the roof, 2 mini split ac units and has 16+ ft vaulted ceiling. Additional RV parking with a clean out is available as well.
This property is the ultimate compound-style retreat, blending privacy, functionality, and luxury living all on an acre with no HOA. Homes like this rarely come to market. This home should be at the top of your "must see" list.
North on N 195th Ave - left on W Pierson St - right on W Mariposa Dr
Dwelling Type: Residential
Subdivision: N/A
Year Built: 2016, County: N/A
North on N 195th Ave - left on W Pierson St - right on W Mariposa Dr
Listing is courtesy of eXp Realty
Sign in to your account to continue