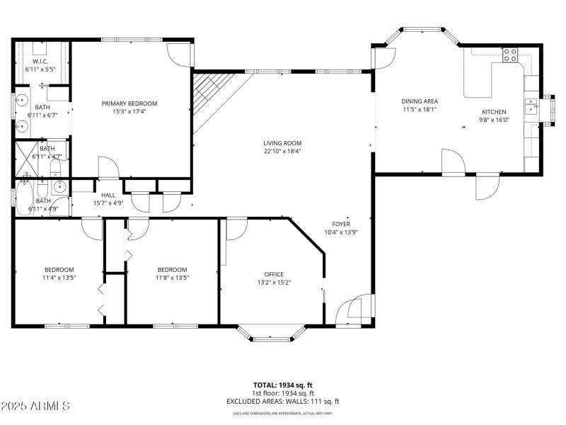
New Roof! Set on a generous lot, this 2,240 SqFt Groves custom home offers an open layout and oversized rooms throughout. A circular drive and dual RV gates provide ample parking. Inside, bay and picture windows bring in natural light, while a large red brick fireplace anchors the living space. The formal dining area connects easily to the kitchen with counter seating, creating a comfortable flow for everyday living and gatherings. Recent updates including fresh interior paint, new fixtures and more. The primary suite features a walk-in closet, dual sinks, a separate toilet and shower room, and private backyard access. Outside, a North-facing yard showcases mature citrus and fruit trees offering ample shade, covered patio, three storage sheds and expansive side yards with parking pad **Extended Listing Description: There's something grounding about arriving home to a circular drive, mature trees, and the sense that space, real usable space was part of the original vision. This owner-built custom home sits comfortably on nearly a third of an acre, giving the property room to breathe from the moment you arrive.
Inside, the layout opens wide, with generously sized rooms and sight-lines designed for connection rather than confinement. Picture windows and bay windows soften the interiors with natural light throughout the day, adding depth and warmth to the living spaces. The main living area centers around a substantial red brick fireplace, a natural gathering point when evenings warrant something slower and more relaxed.
The kitchen and dining areas are thoughtfully connected, with counter seating and a formal dining space that easily accommodate both everyday meals and longer conversations. The efficient galley kitchen allows for dedicated space for both a refrigerator and a stand-up freezer, making it well-suited for home cooks who value function as much as flow. An interior laundry room and an additional half bath in the garage add practical convenience rarely found together.
Wide hallways and doorways reflect intentional ADA-friendly design, creating ease of movement throughout the home. The primary bedroom is set apart as a quiet retreat, offering direct access to the backyard, a walk-in closet, dual sinks, and a separate toilet and shower room a layout that supports both privacy and comfort.
Step outside and the property truly unfolds. The North-facing backyard is expansive, with mature citrus and fruit and nut trees that have been freshly trimmed, creating shaded pockets ideal for reading, relaxing, or simply enjoying the outdoors. Covered patio access from the dining area extends the living space naturally outside, while thoughtful ground cover updates keep the yard both functional and inviting. A concrete pad with pre-wire is spa ready. Large side yards and a substantial concrete RV or trailer pad, paired with dual RV gates, offer flexibility for hobbies, storage, or travel-focused lifestyles. Three storage sheds provide even more room to stay organized.
Beyond the property, life in The Groves feels quietly connected. Sidewalks, well-kept yards, and a pet-friendly atmosphere give the neighborhood a lived-in, community-oriented feel where kids play outside and neighbors take pride in their surroundings. The location offers a comfortable balance suburban calm paired with easy access to Mesa's outdoor recreation, cultural venues, shopping districts, and downtown energy making this home a solid foundation for both everyday living and long-term enjoyment.
From US-60 Exit Val Vista Dr. N on Val VIsta to Adobe St, L on Adobe St, home will be mid-block on your right.
Dwelling Type: Residential
Subdivision: THAYER ESTATES UNIT 1
Year Built: 1984, County: N/A
From US-60 Exit Val Vista Dr. N on Val VIsta to Adobe St, L on Adobe St, home will be mid-block on your right.
Listing is courtesy of Keller Williams Realty Phoenix
Sign in to your account to continue