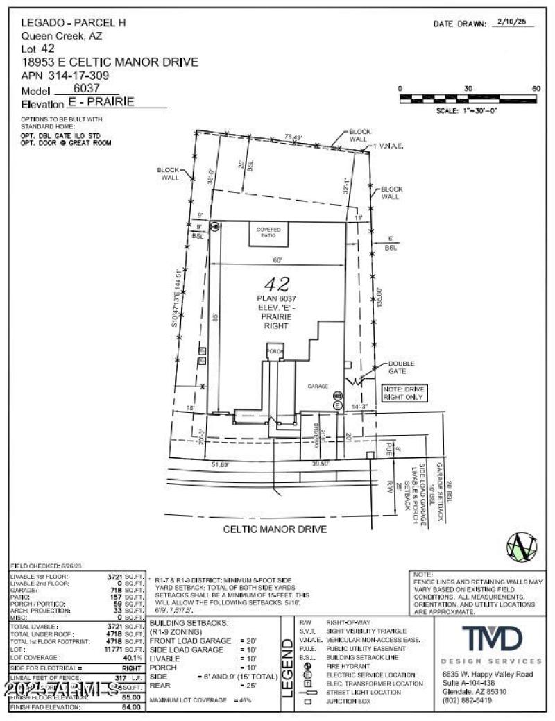
What's Special: Larger Backyard | No Rear Neighbors | 5th Bedroom | Flex Room. New Construction - Ready Now! Built by America's Most Trusted Homebuilder. Welcome to the Palisade at 18953 E Celtic Manor Drive in Legado! Where thoughtful design meets everyday comfort. Enter through a charming courtyard and front porch into a bright, open space that blends the great room, dining area, kitchen, and a covered patio—perfect for gathering. The serene primary suite offers a spa-like bath and generous walk-in closet, while three secondary bedrooms, a teen room, and laundry sit nearby. On the opposite side, discover two flexible rooms plus an additional bedroom and bath, giving you space to grow and create. MLS#6958281 This master-planned community is full of life, with basketball and pickleball courts, a lake, splash pad, playground, and even a butterfly garden certified by the National Wildlife Federation. Nearby, enjoy local favorites like Harkins Theaters, Desert Mountain Park, San Tan Flat, and Trader Joe's. Here, nature, convenience, and connection come together beautifully. Additional Highlights Include: Multi-slide door at great room, 8' double gate at garage side, chef kitchen, marble shower in place of tub at bath 4, and single iron front door.
From Loop 202: Take AZ-24/Gateway Fwy, go right (S) on Ellsworth Rd to Pecos Rd. Go right (W) on Pecos Rd, left (S) on Sossaman Rd, right (W) on Legado Blvd. Take 2nd right on 188th Way.
Dwelling Type: Residential
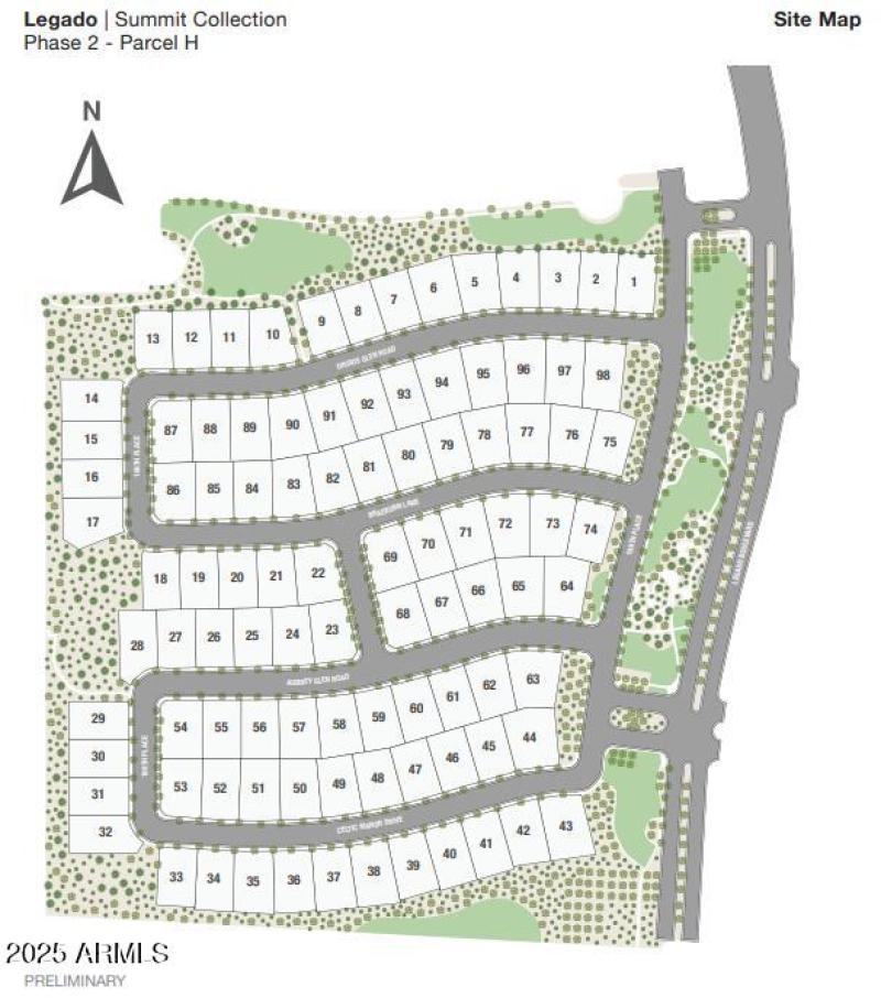
Subdivision: Legado Summit
Year Built: 2026, County: N/A
From Loop 202: Take AZ-24/Gateway Fwy, go right (S) on Ellsworth Rd to Pecos Rd. Go right (W) on Pecos Rd, left (S) on Sossaman Rd, right (W) on Legado Blvd. Take 2nd right on 188th Way.
Listing is courtesy of Taylor Morrison (MLS Only)
Sign in to your account to continue