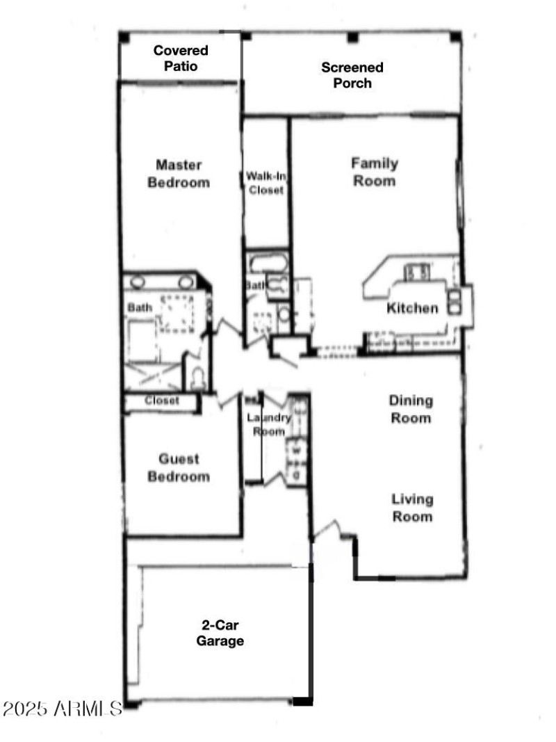
Beautifully maintained single owner home featuring the Hermosa floor plan with 2 bedrooms and 2 bathrooms. Situated on a desirable corner lot. New roof 2025, A/C 5 years old, Water heater 2025, rare Central Vac and recently upgraded irrigation. This home offers generously sized bedrooms and a spacious 2 car garage. Enjoy bug free days and evenings in the enclosed patio, perfect for relaxing or entertaining year round. The kitchen has a welcoming bar with seating for five, ideal for gatherings and casual dining. A well designed layout, pride of ownership, and thoughtful features make this home a standout opportunity. Furniture and decor available on separate bill of sale.
OAKWOOD W SIDE - NO GATE CODE! MUST USE MANNED GUARD GATE! W on Riggs to R on Sun Lakes Blvd (through gates into Oakwood) to L on Nacoma then L on Briarcrest.
Dwelling Type: Residential
Subdivision: SUN LAKES UNIT THIRTY-SIX B
Year Built: 2000, County: N/A
OAKWOOD W SIDE - NO GATE CODE! MUST USE MANNED GUARD GATE! W on Riggs to R on Sun Lakes Blvd (through gates into Oakwood) to L on Nacoma then L on Briarcrest.
Listing is courtesy of Realty ONE Group
Sign in to your account to continue