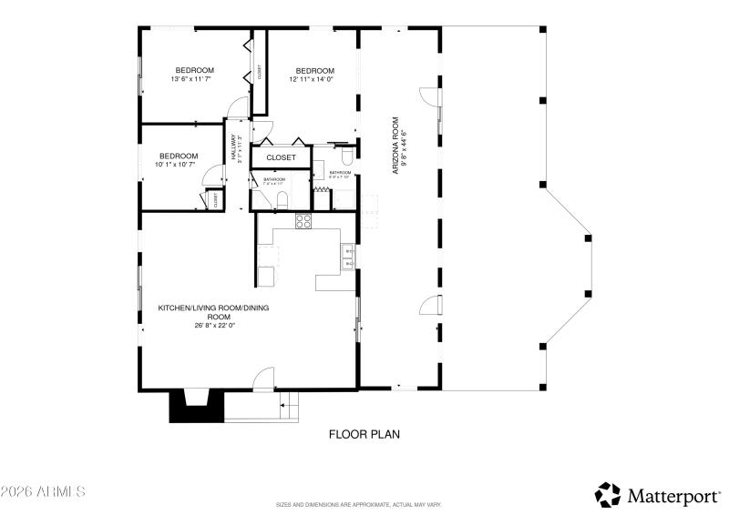
Beautifully updated slump block home featuring exposed wood beam ceilings, tile flooring and an updated kitchen designed for both style and functionality. This well-appointed residence offers three spacious bedrooms and two bathrooms, along with a large Arizona room ideal for additional living or entertaining space. Step outside to expansive covered patios with a stamped concrete deck, surrounded by natural desert landscaping with mature saguaros and dwarf citrus trees—providing both beauty and privacy. The property is exceptionally well equipped for hobbyists and outdoor enthusiasts, boasting a large garage/workshop, covered stall, and a generous turnout area for horses. Additional features include an electric RV hookup and a large open parking area on 1.2 acres in town.
Wickenburg Way, South on Falcon Dr, Right on Vista Dr, Home on the left
Dwelling Type: Residential
Subdivision: Meets & Bounds
Year Built: 1976, County: N/A
Wickenburg Way, South on Falcon Dr, Right on Vista Dr, Home on the left
Listing is courtesy of Realty Executives Arizona Territory
Sign in to your account to continue