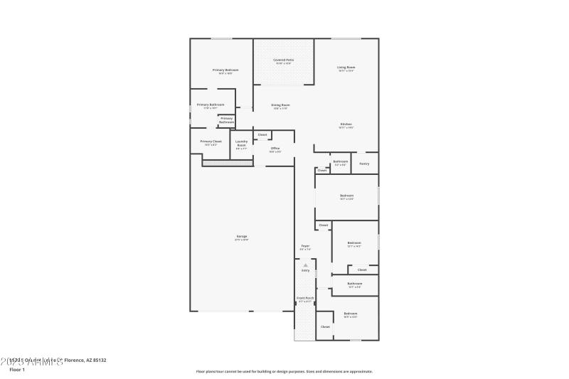
This lovely property beautifully combines style, space, and convenience. This standout corner-lot home offers 4 bedrooms, 2.5 bathrooms, and an impressive 2,408 square feet of living space. The residence features an elegant foyer and a thoughtful split floor plan that places the primary suite in its own private wing for maximum privacy. For those needing flexibility, the fourth bedroom could work as a large office with double doors, perfect for a remote workspace or a dedicated hobby room. The heart of the home is an open-concept kitchen featuring a large island, granite countertops, and abundant cabinetry, making it an ideal space for entertaining. A significant highlight of this property is the rare RV tandem garage, which provides ample room for an RV plus two additional vehicles.
East on Arizona Farms, South on Felix, West on Cobblestone, South on Apple, East on Harvest which curves south and turns into Cotton, West on Orange Grove, last house on south side ''corner''.
Dwelling Type: Residential
Subdivision: CRESTFIELD MANOR AT ARIZONA FARMS VILLAGE PAR 7
Year Built: 2019, County: N/A
East on Arizona Farms, South on Felix, West on Cobblestone, South on Apple, East on Harvest which curves south and turns into Cotton, West on Orange Grove, last house on south side ''corner''.
Listing is courtesy of My Home Group Real Estate
Sign in to your account to continue