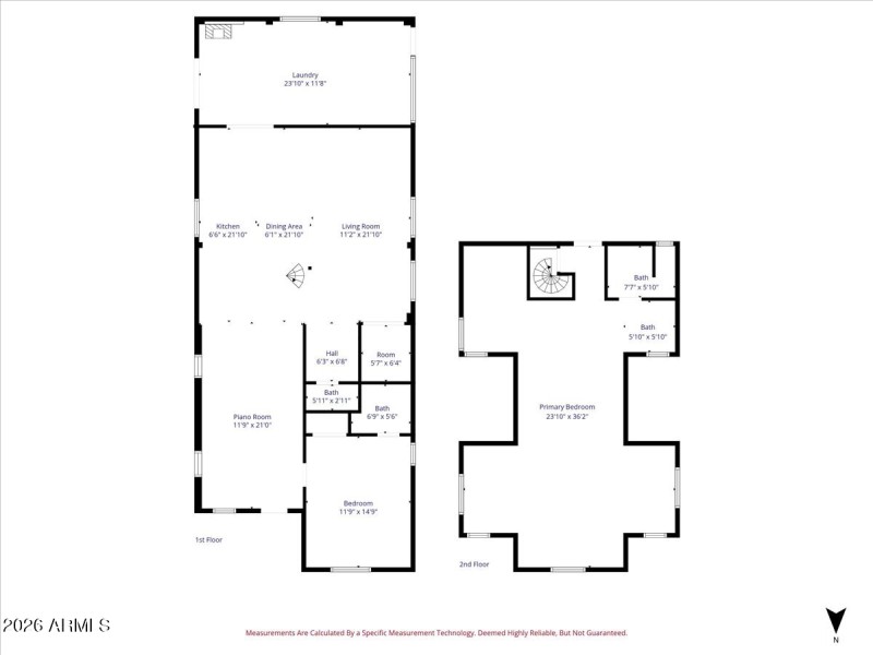
Designed for multigenerational living, extended family arrangements, or income-producing potential. This versatile home adjacent to the Oakland Historic District offers exceptional flexibility for today's lifestyle. With a layout that allows for separation of spaces while still maintaining connection, the home adapts easily to a variety of living needs.
The floor plan lends itself well to dual living scenarios, whether accommodating family members, guests, or a dedicated home office or rental setup. Multiple living areas & well-proportioned bedrooms create privacy where needed, while shared spaces remain ideal for gathering & everyday living. From an investment perspective, the property presents strong appeal for buyers seeking long-term hold, rental income or future value-add opportunities. With its functional layout and proximity to nearby ASU, there's also potential as a primary residence with supplemental income or a strategic addition to an investment portfolio.
Outdoor space provides gorgeous sunsets over city views, room to relax, entertain, or expand possibilities, while the surrounding neighborhood offers convenient access to daily amenities, employment corridors, & lifestyle destinations. This is your opportunity to own a home that supports how people actually live today: flexible, practical, & full of potential.
From 17 Exit 196 7th Ave to Historic US 80/Van Buren go 1/2 mile to N15th Ave, turn right, south .4 miles to Garfield Street, turn left to home on left side of street.
Dwelling Type: Residential
Subdivision: HOMESTEAD PLACE
Year Built: 1900, County: N/A
From 17 Exit 196 7th Ave to Historic US 80/Van Buren go 1/2 mile to N15th Ave, turn right, south .4 miles to Garfield Street, turn left to home on left side of street.
Listing is courtesy of SERHANT.
Sign in to your account to continue