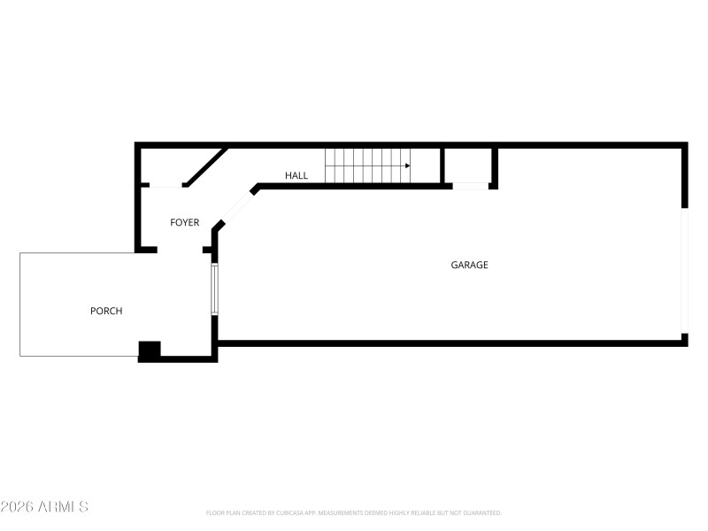
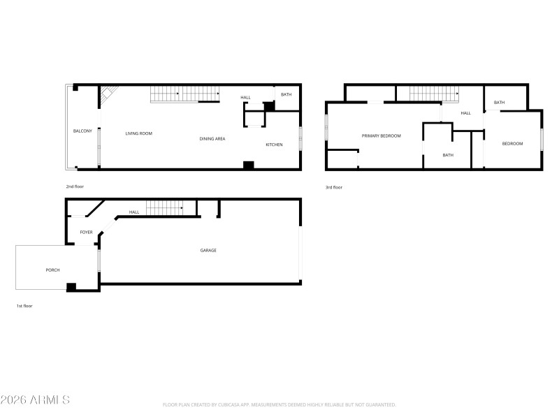
Immaculately maintained tri-level townhouse in the heart of Pinetop with a double tandem heated two-car garage, just steps from Woodland Lake trails and walking distance to grocery stores, restaurants, and more. Outdoor adventures abound with hiking, fishing, biking, golfing, and Sunrise Ski Resort only 30 minutes away. Inside, you'll find granite counters, stainless steel appliances, and a cozy stone gas fireplace, while the large tiled upper deck and covered patio provide perfect spaces to enjoy cool mountain evenings. The garage's back space can easily be converted into an office or third bedroom with heating and cooling already installed. With no mandatory HOA, natural gas, and on-demand hot water, this home offers both comfort and convenience—don't miss this one! Shared dumpster trash
Natural Gas heating
Gas Stove/Range
NOTE the Furnishings stored in the garage are available with the sale of the home however the large Hutch and a lighter solid wood dresser NOT convey. See Document Tab
The Photos with furnishings are 'STAGED' and not available.
Discover the White Mountains of Arizonawhere adventure, beauty, and fresh mountain air come together. Enjoy four stunning seasons, 40 lakes, and 600+ miles of rivers and streams, perfect for fishing, kayaking, and exploring.
Hit the trails on one of the largest trail systems in the Southwest, or spend winter days at Sunrise Ski Resort, just 40 minutes away with three mountains of skiing, snowboarding, and sledding.
Love shopping or culture; wander through antique shops, summer arts & craft fairs, and lively music festivals. Golfers can tee off at seven scenic courses, including three public gems.
It's no wonder Pinetop-Lakeside was voted the "Best Cabin Region in the U.S."
The White MountainsArizona's best-kept secret. Come explore and embrace the MAGIC!
Hwy 260 across from Safeway in Pinetop
Dwelling Type: Residential
Subdivision: PINE CREEK
Year Built: 2006, County: N/A
Hwy 260 across from Safeway in Pinetop
Listing is courtesy of Realty Executives Arizona Territory
Sign in to your account to continue