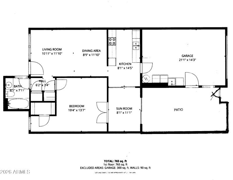
This inviting one-bedroom, one-bath patio home offers a spacious, well-designed interior with comfortable living areas. An Arizona room opens to a private rear patio, perfect for relaxing or entertaining, while the front patio overlooks a beautifully maintained common area. The large bedroom easily accommodates a desk or workspace. An attached garage includes ample storage cabinets, plus a washer, dryer, and laundry sink for added convenience. Ideally located near shopping, dining, recreation centers, and swimming, this charming patio home is ready to become your special place to call home.
From N 99th Ave, Left on W Palmeras Dr to To Right on 102nd Dr Property is in Mocha Court on North side.
Dwelling Type: Residential
Subdivision: SUN CITY 41
Year Built: 1978, County: N/A
From N 99th Ave, Left on W Palmeras Dr to To Right on 102nd Dr Property is in Mocha Court on North side.
Listing is courtesy of Award Realty
Sign in to your account to continue