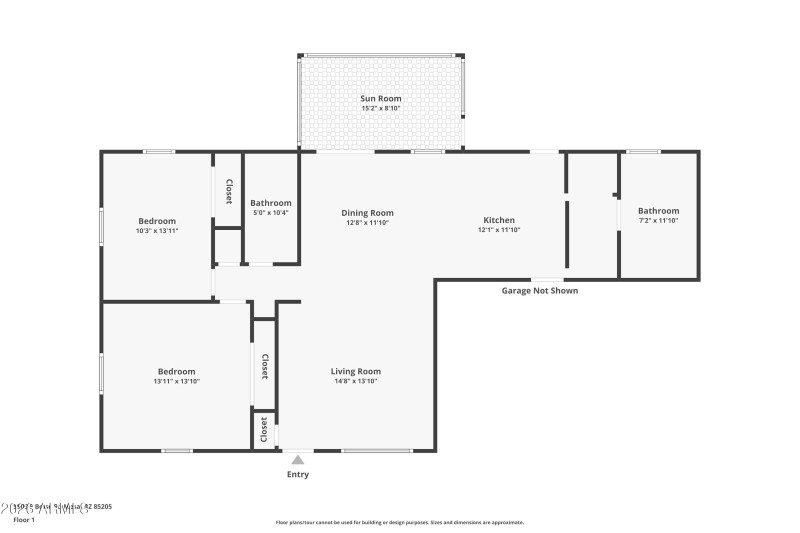
NEW ROOF, NEW A/C, AND NEW WINDOWS highlight this beautifully updated home in the Dreamland Villa age-restricted community. Fully remodeled in 2022, this spacious and open 2-bedroom, 2-bath residence features an oversized 2-car garage and a large finished Arizona room ideal for additional living space. The interior offers indoor laundry, stainless steel appliances, quartz countertops, tile backsplash, newer paint, LVP flooring, and new carpet in the bedrooms. Truly turnkey and move-in ready, this home stands out as one of the finest opportunities in Dreamland Villa.
From University and Recker, go south on Recker, turn right on Billings, immediate left on frontage road, right on Boise St.
Dwelling Type: Residential
Subdivision: DREAMLAND VILLA
Year Built: 1971, County: N/A
From University and Recker, go south on Recker, turn right on Billings, immediate left on frontage road, right on Boise St.
Listing is courtesy of West USA Realty
Sign in to your account to continue