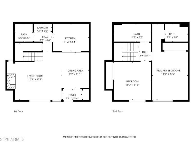
Discover the perfect blend of modern comfort and resort-style serenity in this beautifully remodeled 2-bedroom, 2.5-bathroom townhome in the highly coveted Water Works community. Nestled among lush landscaping and tranquil water features, this home has been thoughtfully updated to offer a fresh, contemporary sanctuary that feels like home. The main level features a bright, open-concept living area with stylish new finishes and a refreshed kitchen perfect for the home chef. Upstairs, enjoy the spacious primary suite featuring a private bathroom and ample closet space, alongside a comfortable second bedroom and additional full guest bath. With a convenient main-floor powder room and indoor laundry, every detail is designed for effortless living. This is a must see!
East on Baseline to complex from Dobson. Unit is located at the northwest corner of the complex with plenty of guest parking!
Dwelling Type: Residential
Subdivision: Water Works
Year Built: 1984, County: N/A
East on Baseline to complex from Dobson. Unit is located at the northwest corner of the complex with plenty of guest parking!
Listing is courtesy of Real Broker
Sign in to your account to continue