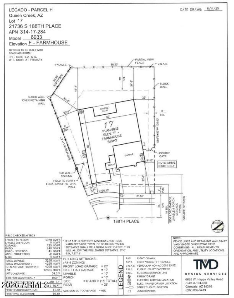
What's Special: Corner Lot | Larger Lot | Backs to Open Space | Dedicated Study. New Construction - April Completion! Built by America's Most Trusted Home Builder. Welcome to the Catalina at 21736 S 188th Place in Legado Summit! An elegant front porch invites you into a light‑filled foyer, the perfect spot to savor peaceful morning sunrises. From here, the home opens beautifully into an airy great room, dining space, and kitchen that flow together seamlessly, with a covered patio just beyond for effortless indoor‑outdoor living. One wing of the home features a private bedroom suite with its own bath and walk‑in closet, while a nearby teen room connects two additional bedrooms and a shared bath, creating space for togetherness and privacy alike. MLS#6972088 On the opposite side, a threecar garage offers generous storage, while a tuckedaway study, laundry room, powder room, and formal dining area add everyday convenience. The serene primary suite is a true retreat, complete with a spainspired bath and an expansive walkin closet. Located within a vibrant masterplanned community, residents enjoy basketball and pickleball courts, a peaceful lake, splash pad, playground, and unforgettable moments outdoors. Nature lovers will adore the National Wildlife FederationCertified Butterfly Garden, where monarchs may visit throughout the seasons. With nearby favorites like Harkins Theaters, Desert Mountain Park, San Tan Flat, Trader Joe's, and more just a short drive away, this community offers a lifestyle as special as the home itself. Additional Highlights Include: Exterior door at primary bedroom, 8' double gate, and gourmet kitchen.
From Loop 202: Take AZ-24/Gateway Fwy, go right (S) on Ellsworth Rd to Pecos Rd. Go right (W) on Pecos Rd, left (S) on Sossaman Rd, right (W) on Legado Blvd. Take 2nd right on 188th Way.
Dwelling Type: Residential
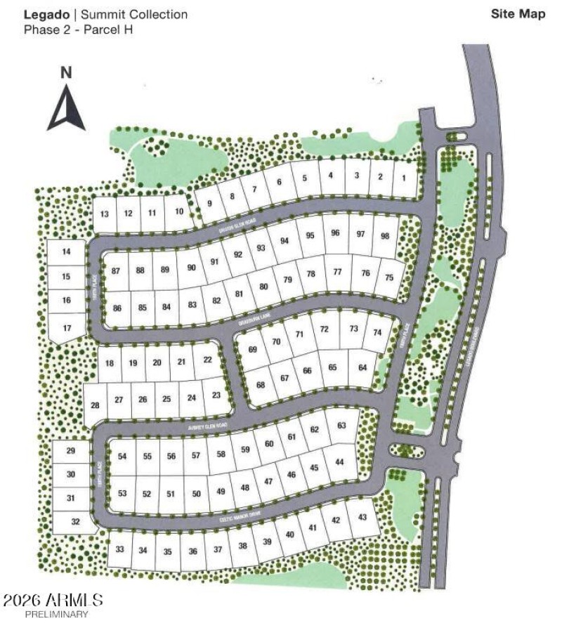
Subdivision: Legado Sumimt
Year Built: 2026, County: N/A
From Loop 202: Take AZ-24/Gateway Fwy, go right (S) on Ellsworth Rd to Pecos Rd. Go right (W) on Pecos Rd, left (S) on Sossaman Rd, right (W) on Legado Blvd. Take 2nd right on 188th Way.
Listing is courtesy of Taylor Morrison (MLS Only)
Sign in to your account to continue