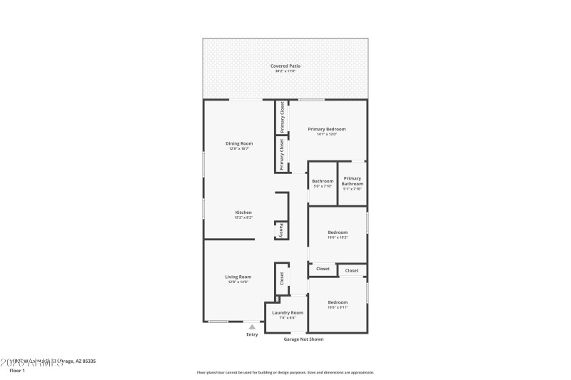
Gorgeous 3 bedroom, 2 bathroom home with a pool for sale in El Mirage, AZ. This well-maintained home sits on a premium corner lot. It is designed for the modern lifestyle with an inviting open floor plan and soaring ceilings. The heart of the home is the inviting kitchen, which offers an open-concept design with an island, updated counter tops, ample counter space, new dishwasher and microwave, and seamless flow into the living areas. The kitchen is conveniently located near the rear covered patio and sparkling pool area which are ideal for entertaining. Warm paint colors and natural light create a welcoming atmosphere throughout the home. Step outside to your own private backyard oasis. The private yard features a custom-made covered patio and a sparkling swimming pool. To summarize, Key Features & Amenities:
" 3 Bedrooms, 2 Bathrooms
" 1,238 sq. ft. Single-Level Living
" Corner Lot Location
" New Water Heater 2025
" New Dual Pane Windows 2024 for added efficiency
" New Air Conditioner 2018
" Energy Efficient leased solar
" Updated Countertops, New dishwasher, New Microwave
" Open Floor Plan & Soaring Ceilings
" Private Swimming Pool & Covered Patio
" Low Maintenance Landscaping
" Move-In Ready
Located in a sought-after El Mirage neighborhood near dining, sporting venues, entertainment and Lake Pleasant in nearby Peoria. This property is a must-see for buyers seeking an affordable, updated, and high-quality home in El Mirage with a pool.
EAST ON CACTUS, RIGHT ON MAIN, RIGHT ON CORTEZ, LEFT ON PABLO, RIGHT ON CORTEZ. HOME IS ON THE LEFT.
Dwelling Type: Residential
Subdivision: SUNDIAL 4 UNIT 1 REPLAT
Year Built: 2002, County: N/A
EAST ON CACTUS, RIGHT ON MAIN, RIGHT ON CORTEZ, LEFT ON PABLO, RIGHT ON CORTEZ. HOME IS ON THE LEFT.
Listing is courtesy of HomeSmart
Sign in to your account to continue